农村别墅自建不是想建多大就建多大的,不仅仅要考虑地基的大小,还要因地制宜,别墅大不大倒无所谓,但一定要紧凑,紧凑的别墅那才叫住的舒服呢,
现在的别墅都是经过设计的通过合理的布局和外型设计,才能建一栋大气漂亮,舒适亮堂的好房子。大家看看这套农村别墅户型怎么样?
轴线尺寸11.9米X12.9米,有车库,挑空客厅,主卧室套间,屋顶有露台。


一层平面图:一般农村宅地,只有一侧有道路,所以车库没有选择,只能在南侧。南向另一个位置留个客厅,半八角型的局部布局加上挑空客厅,相当大气。餐厅厨房相连,与客厅隔开,更具别墅范。北侧留客卧一间,楼梯下设储藏室。
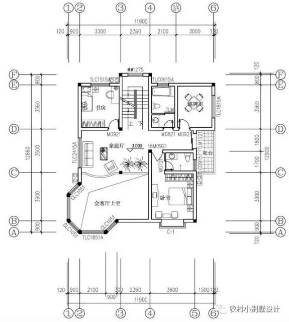
二楼平面图:二楼家庭厅可以俯视客厅,主卧朝南是带卫生间的套间。北侧两个房间标注的是书房和棋牌室,实际建造中可以灵活安排。
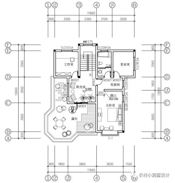
三层平面图:三层是房主专享,可以算超豪华套间,卧室带更衣室,化妆间,卫生间,还有工作室和阳光房。露台边房间直接设计为阳光房是亮点,八边型露台设计也非常有特色。屋顶为坡屋顶,可以有效隔热。
正立面图:

后立面图:楼梯间贯通玻璃极大增加采光面,就是两侧不采光,室内大部分空间也会亮堂。
