现在别墅建设中套间也是比较常见的,什么是套间呢?套间就是两个房间或两个以上房间组合在一起,这样组合的房间比较方便,也可以看成一个大房间分成几个不同的区域,有的厕所和衣帽间相连、有的书房和卧室相连、有的厨房和餐厅相连,这样的设计能够把空间利用到最大化。
那么今天介绍的这款农村别墅有一部分是套间组合
效果图

户型基本信息
开间:13.7米,进深:10.2米
占地面积:131.03平方米
建筑面积:291.61平方米
建筑高度:9.8米
结构类型:框架结构
主体造价参考:32-35万
户型特点:
1、主体外墙、屋顶和屋檐均采用暗色调,低调不张扬;
2、大门设有门亭、罗马柱,既增加别墅气派性,又显高;
3、入户设有玄关,避免开门见山,保护隐私,更具安全性;
4、一层客厅东西、南北方向都设有窗户,加强通光性;
5、卧室连着书房,既方便,又充分利用有效面积;
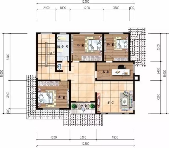
一层平面图

二层平面图

该户型适合有5-6个成员的家庭,4个房间2个卫生间,实用性强,切实符合农村生活习俗,大众适用户型。