有一套经济实惠漂亮大方的房子是每个买房一族的愿望,这个愿望只能在农村实现了,农村自建别墅比城里的普通楼房还要便宜,普通收入家庭基本承受得起,农村自建房比城里买房要好,最大的优势是不用还房贷。




这款户型外观,细腻润滑的麦牙色搭配清爽纯净的亮蓝色,传递出明媚盎然的格调,呈现出富足闲适的生活状态,将家的温暖与坚实完美融合。
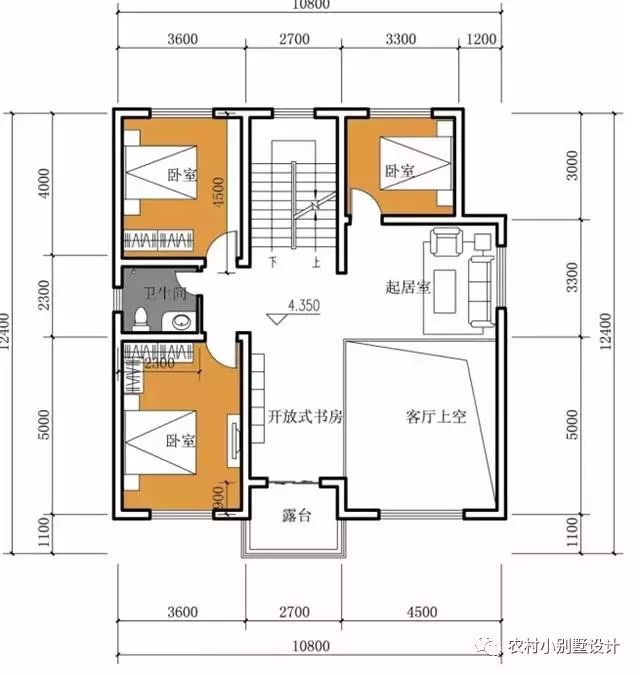
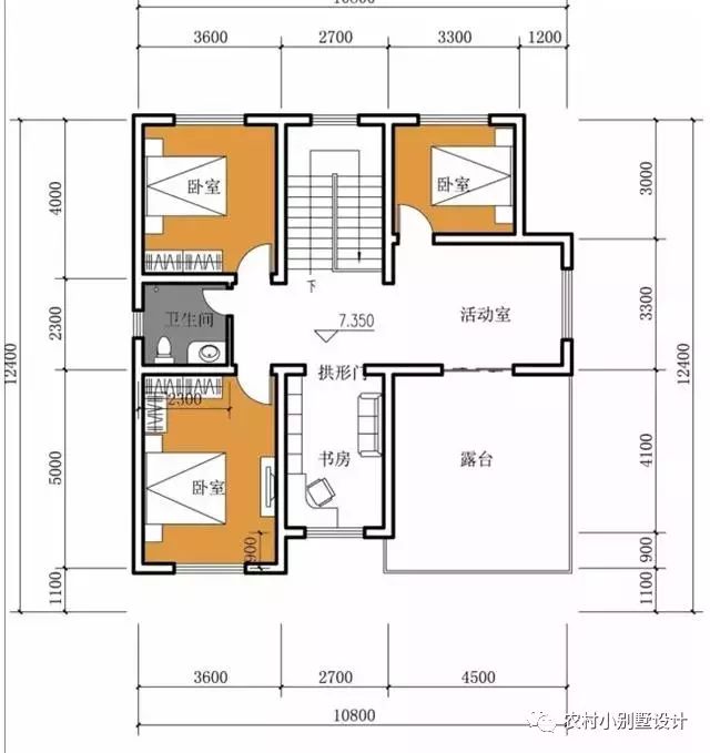
平面图介绍

一层平面图:设有玄关,客厅,2卧室,1餐厅,1厨房,1卫生间

二层平面图:设有1书房,3卧室,1卫生间,1卫生间,1起居室

三层平面图:设有3卧室,1书房,1卫生间,1活动室(可设麻将房)
基本信息:
占地尺寸:10.8m*11.9m
占地面积:126㎡
建筑面积:336㎡
总 高 度:12.6m
建筑情况:8室2厅3卫1玄关2书房1厨房1起居室1活动室2大露台
看完这套小别墅,是否符合你家的需求呢?总体来说农村建房是一个不错的选择,不用为房贷苦恼还可以剩下一大笔钱何乐而不为呢。