您好,欢迎访问轩鼎房屋图纸网,轩鼎建筑为您提供新农村房屋设计图、别墅设计图纸以及别墅定制设计与咨询服务。
 
 
  热门搜索:自建房 别墅设计 房屋设计图   
网站首页 图纸大全 定制设计 作品展示 建房图文 联系我们
一层房屋图纸
二层房屋图纸
三层房屋图纸
四层以上图纸
双拼房屋图纸
其他建筑图纸
 
 
 您的位置:首页 ->> 建房图文 ->> 新中式别墅:传统与现代的融合之美,看看这款美观大方
 
 

新中式别墅:传统与现代的融合之美,看看这款美观大方

发布时间:2025/6/21 18:29:58 点击数: 168次 

新中式别墅:传统与现代的融合之美,看看这款美观大方

          这栋新中式别墅,是传统韵味与现代舒适的完美融合,诠释着独特的居住美学。

· 外观设计

          外观上,别墅以沉稳的色调、简洁的线条勾勒轮廓,石材与砖石搭配,既有中式建筑的厚重质感,又不失现代建筑的利落。清风徐来的门匾,翠竹点缀的围墙,传递出中式庭院的含蓄意境,与周边自然环境和谐共生,仿佛一幅徐徐展开的山水画卷。


图片1.jpg 

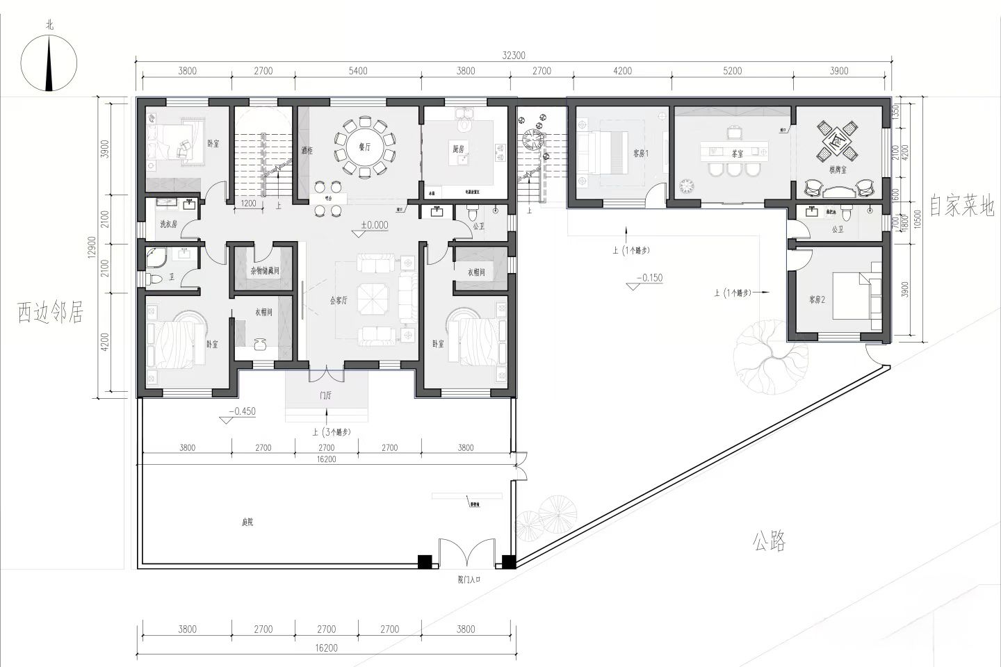
· 第一层

          进入室内,一层布局注重生活场景的营造。

1. 客厅、餐厅连通,空间开阔通透,满足家庭聚会与社交需求。

2. 卧室、客房分布合理,方便居住与待客,杂物储藏间”“衣帽间等功能区,让生活有序。

3. 细微的高差设计,增添空间层次,也契合地形,体现设计巧思。


图片2.jpg 

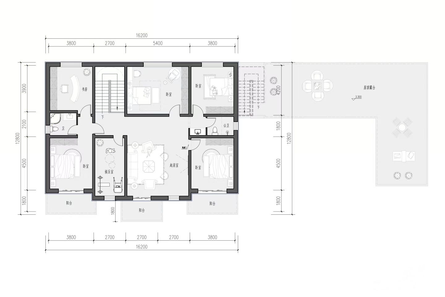
· 第二层

          二层则偏向私密与休闲。

1. 书房营造静谧阅读氛围,娱乐室为家庭休闲提供场所,多阳台设计,引景入室,让居者在休憩时能饱览户外风光。

2. 屋顶露台拓展了活动空间,无论是观景赏月,还是亲友小聚,都别有一番意趣。


图片3.jpg 

          从室外到室内,这栋别墅将中式元素融入现代建筑语汇,在传承文化底蕴的同时,打造舒适便捷的居住体验,是传统与现代交融的理想居所范本,让居者在时光流转中,品味东方美学与现代生活的交融之美。

转载请注明出自="://www.lemeizhai.com/">别墅设计-乡村房子设计图-农村自建房设计图-轩鼎房屋图纸网

 
· 卧室门尺寸一般是多少(卧室门的...
· 漂亮房子越来越多,赶快建吧1!...
· 如今在农村,建别墅的越来越多,...
· 新西兰松木怎么样(新西兰松木属...
· 建这样的欧式别墅,乐享乡村生活...
· 房屋设计平面图来了!(2022年自...
· 乡村130双层自建别墅,设计美观...
· 阁楼如何装修呢(阁楼装修注意事...
  关于我们 网站事务 帮助中心
客服热线:400-079-6579
客服QQ:10928711 10928755 10928799
地址:山东省潍坊财富大厦1801
 

预定须知
顾客必读
配送方式

 


Copyright 2016 www.lemeizhai.com All Rights Reserved ICP备案序号:鲁ICP备2026012448号-1
轩鼎房屋图纸 电 话:0536-3385581 3385582 传 真:0536-3385581 地 址:山东省潍坊财富大厦1801


keywords:房屋设计图 房屋设计图 农村房屋设计图 农村房屋设计图 建房图文