农村自建房设计别墅:自然与生活共融的别墅设计
这栋别墅设计,巧妙融合自然与居住功能,构建出惬意的生活空间。
· 外观设计
从外观来看,深色坡屋顶搭配石砌外墙,沉稳又具质感,天窗设计引入更多光线,打破空间沉闷。周围棕榈树环绕,与建筑形成层次,营造出热带休闲氛围,仿佛将度假感融入日常居住环境 。

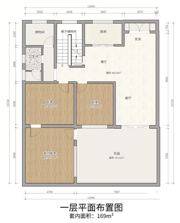
· 第一层
一层平面布局,套内169㎡空间。
1. 玄关连接餐厅、客厅,形成流畅公共活动区。
2. 餐厅与厨房相邻,方便备餐用餐。
3. 客厅开阔,可作为家庭交流核心区。
4. 两间卧室满足居住需求,多功能室灵活可变。
5. 花园面积超42㎡,成为室内外过渡的自然延伸,在这里,晨起赏花、午后休憩,让生活与自然紧密相连 。
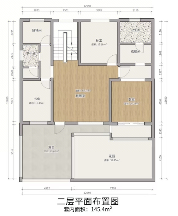
· 第二层
二层套内145.4㎡,布局更注重私密与休闲。
1. 起居室作为家庭交流新节点,连接卧室、书房等空间。
2. 三间卧室(含带衣帽间的)保障居住私密性,书房为阅读办公提供安静角落。
3. 露台与花园,一个适合夜晚观星,一个可打造空中绿植天地,拓展了生活的诗意维度 。
整体设计通过外观材质、色彩与自然环境呼应,室内布局兼顾功能与互动,让居住者在不同楼层、空间,都能感受到自然融入生活的惬意,从户外棕榈摇曳到室内花园生趣,从公共空间的温馨交流到私密区域的宁静休憩,构建出一个既具现代居住舒适,又满是自然意趣的理想家园 。
转载请注明出自="://www.lemeizhai.com/">别墅设计-乡村房子设计图-农村自建房设计图-轩鼎房屋图纸网