您好,欢迎访问轩鼎房屋图纸网,轩鼎建筑为您提供新农村房屋设计图、别墅设计图纸以及别墅定制设计与咨询服务。
 
 
  热门搜索:自建房 别墅设计 房屋设计图   
网站首页 图纸大全 定制设计 作品展示 建房图文 联系我们
一层房屋图纸
二层房屋图纸
三层房屋图纸
四层以上图纸
双拼房屋图纸
其他建筑图纸
 
 
 您的位置:首页 ->> 建房图文 ->> 农村自建现代别墅:空间与自然的融合之美
 
 

农村自建现代别墅:空间与自然的融合之美

发布时间:2025/7/9 23:46:01 点击数: 145次 

农村自建现代别墅:空间与自然的融合之美

          在建筑设计的领域中,这栋现代别墅以其独特的室内外设计,诠释着空间与自然融合的美学理念,展现了其美观大方。

·      外观设计

          从外观来看,别墅采用简洁的几何形体,白色的外墙搭配深色的屋顶与窗框,形成鲜明的色彩对比。大面积的玻璃幕墙是外观设计的亮点,它不仅让建筑外观更具现代感,还打破了室内外的视觉界限,使室内空间能够充分引入自然光线与室外的绿意。庭院中,规整的草坪、小巧的绿植与休闲桌椅布局,营造出舒适惬意的户外生活场景,将自然元素巧妙融入居住环境。


3.1.jpg

·      第一层

          进入室内,一层平面图展现出开放且功能明晰的空间布局。

1.    玄关作为空间过渡,连接着各个功能区。

2.    客厅宽敞明亮,与茶室相连,形成一个兼具社交与休闲功能的复合空间,家人朋友可在此交流、休憩。

3.    餐厅与厨房相邻,方便用餐与备餐流程。

4.    两处卫生间的设置也考虑到了日常使用的便利性。

5.    卧室带有阳台,为居住者提供了亲近自然的私密角落 

3.2.jpg

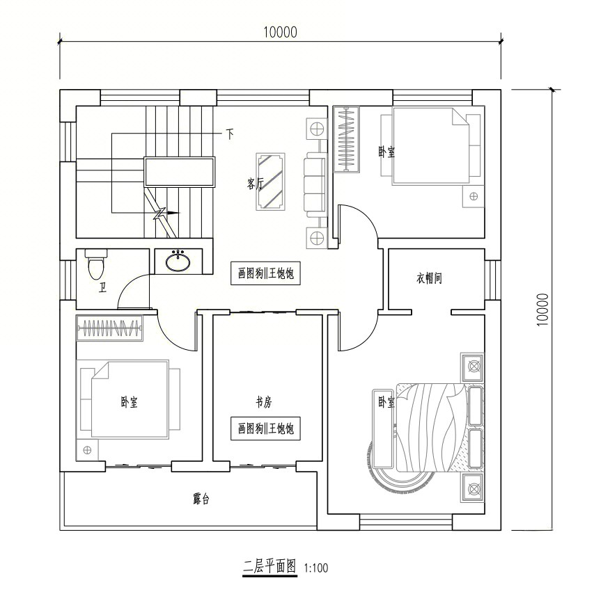
·      第二层

          二层空间则更侧重于居住的私密性与多元性。

1.    多个卧室满足家庭成员的居住需求,其中带衣帽间的卧室,提升了居住的舒适与便捷。

2.    书房的设置,为阅读、办公提供了安静空间。

3.    露台则成为观景、放松的好去处,在这里,可俯瞰庭院景观,感受自然微风,让室内外空间的融合在垂直维度上延续 

3.3.jpg

          这栋别墅的设计,从外观的现代简约到室内空间的功能布局,都围绕着融合展开。将自然景观引入室内,让室内空间与室外环境相互渗透,既满足了现代生活对空间功能的需求,又营造出亲近自然、舒适惬意的居住氛围,展现出建筑设计中空间与自然融合之美,为现代居住空间的打造提供了优秀范例 


 
· 两栋宽12米大小的农村别墅,第一...
· 现代简约风格:94平方米的舒适之...
· 1款带阳光房的别墅图片,沐浴阳...
· 欣赏清新、简约、欧式风格的别墅...
· 有机颜料和无机颜料的区别(无机...
· 超特别的一款别墅,超大面积单层...
· 现代风格别墅造型简洁、线条干练...
· 房屋装修墙砖出现空鼓怎么办(造...
  关于我们 网站事务 帮助中心
客服热线:400-079-6579
客服QQ:10928711 10928755 10928799
地址:山东省潍坊财富大厦1801
 

预定须知
顾客必读
配送方式

 


Copyright 2016 www.lemeizhai.com All Rights Reserved ICP备案序号:鲁ICP备2026012448号-1
轩鼎房屋图纸 电 话:0536-3385581 3385582 传 真:0536-3385581 地 址:山东省潍坊财富大厦1801


keywords:房屋设计图 房屋设计图 农村房屋设计图 农村房屋设计图 建房图文