您好,欢迎访问轩鼎房屋图纸网,轩鼎建筑为您提供新农村房屋设计图、别墅设计图纸以及别墅定制设计与咨询服务。
 
 
  热门搜索:自建房 别墅设计 房屋设计图   
网站首页 图纸大全 定制设计 作品展示 建房图文 联系我们
一层房屋图纸
二层房屋图纸
三层房屋图纸
四层以上图纸
双拼房屋图纸
其他建筑图纸
 
 
 您的位置:首页 ->> 建房图文 ->> 现代别墅:自然与空间的诗意对话
 
 

现代别墅:自然与空间的诗意对话

发布时间:2025/7/20 23:33:20 点击数: 103次 

现代别墅:自然与空间的诗意对话

          在现代别墅设计中,如何将自然元素与空间布局完美融合,是设计师们不断探索的命题。这组别墅设计图,从外观到室内布局,给出了极具参考价值的答案。

·      外观设计 

          外观上,别墅以浅米色石材为主材,搭配木质元素,呈现出自然质朴的质感。大面积玻璃门窗的运用,不仅保证了室内充足的采光,更让室内外景色无缝衔接。屋顶露台的泳池与休闲区,巧妙利用空间,营造出度假般的惬意氛围,仿佛将自然的馈赠引入生活。


B1.jpg

·      第一层 

          一层布局尽显生活智慧。

1.    33.54㎡的花园,成为室内空间的自然延伸,为居住者提供了亲近自然的绝佳场所。

2.    开放式厨餐厅设计,促进家人间的互动交流,30.24㎡的客厅宽敞明亮,是休闲娱乐的理想之地。

3.    卧室与功能区的合理分布,兼顾了私密性与便利性。


B2.jpg

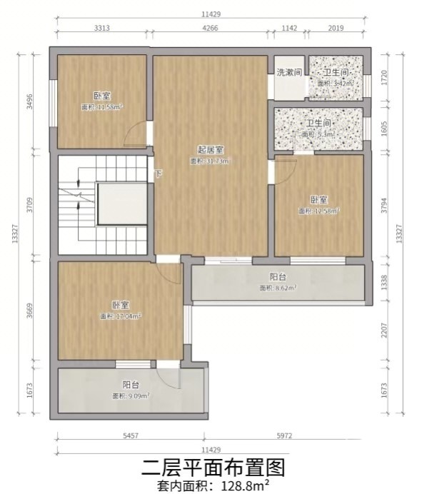
·      第二层 

          二层空间则更注重居住的舒适与格调。

1.    31.33㎡的起居室,为家庭活动提供了充足空间。

2.    多间卧室满足不同居住需求,其中大卧室面积达20.94㎡,搭配独立卫生间,尽显尊贵。

3.    双阳台设计,不仅增加了空间的通透感,更为居住者提供了欣赏美景、放松身心的好去处。

B3.jpg

          整体而言,这栋别墅通过材质、布局与空间的巧妙设计,实现了自然与生活的深度融合。从外观的自然质感,到室内的功能布局,每一处细节都彰显着对品质生活的追求,为居住者打造出一个舒适、惬意且充满诗意的理想家园。

转载请注明="://www.lemeizhai.com/" target="_self">://www.lemeizhai.com/

 
· 实拍精装两层小别墅外观及内部装...
· 农村违建可以强拆吗(农村违建房...
· 集成灶与传统灶有什么区别(集成...
· 农村自建房瓷砖如何挑选(自建房...
· 19.8×14米农村别墅设计,带车库...
· 年轻人第一套别墅必须是现代别墅...
· 农村自建房到底什么风格最受欢迎...
· 上海买房需要什么条件(上海买房...
  关于我们 网站事务 帮助中心
客服热线:400-079-6579
客服QQ:10928711 10928755 10928799
地址:山东省潍坊财富大厦1801
 

预定须知
顾客必读
配送方式

 


Copyright 2016 www.lemeizhai.com All Rights Reserved ICP备案序号:鲁ICP备2026012448号-1
轩鼎房屋图纸 电 话:0536-3385581 3385582 传 真:0536-3385581 地 址:山东省潍坊财富大厦1801


keywords:房屋设计图 房屋设计图 农村房屋设计图 农村房屋设计图 建房图文