您好,欢迎访问轩鼎房屋图纸网,轩鼎建筑为您提供新农村房屋设计图、别墅设计图纸以及别墅定制设计与咨询服务。
 
 
  热门搜索:自建房 别墅设计 房屋设计图   
网站首页 图纸大全 定制设计 作品展示 建房图文 联系我们
一层房屋图纸
二层房屋图纸
三层房屋图纸
四层以上图纸
双拼房屋图纸
其他建筑图纸
 
 
 您的位置:首页 ->> 建房图文 ->> 乡村一层别墅设计:实用与美观的完美融合
 
 

乡村一层别墅设计:实用与美观的完美融合

发布时间:2025/7/21 22:35:48 点击数: 84次 

乡村一层别墅设计:实用与美观的完美融合

          在乡村建房,一层别墅设计是许多人的选择,它既满足了日常居住需求,又具有独特的风格魅力。下面为大家介绍两款颇具特色的乡村一层别墅设计。

·      :外观 设计

          第一款别墅,外观尺寸为15.1×11.1米。从效果图来看,其外观设计典雅大气。红色的坡屋顶搭配白色的墙体,色彩对比鲜明,给人一种简洁明快之感。屋顶上的老虎窗不仅增添了建筑的层次感,还能在一定程度上增加室内采光。门廊处的装饰性雕花和立柱,彰显出欧式建筑的精致韵味。

1.jpg

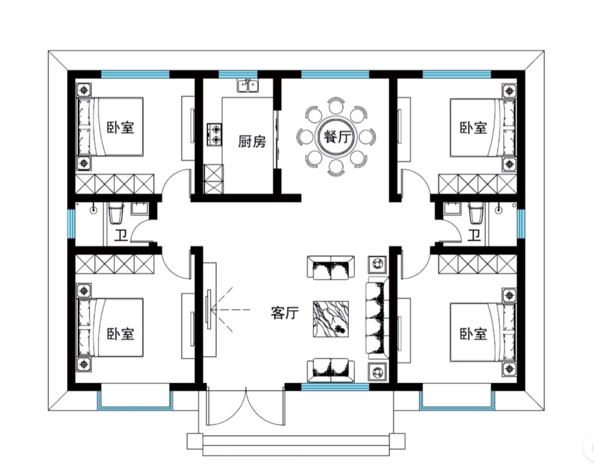
·      :室内设计 

从平面图可以看出,这款别墅的布局较为宽敞。设有四间卧室,能满足多人口家庭的居住需求。两个卫生间的设置,方便了家人的日常使用。客厅空间开阔,是家人休闲娱乐和接待客人的理想场所。餐厅与厨房相邻,方便用餐和备餐。此外,还设有一个储藏室,可用于存放杂物,增加了房屋的实用性。


2.jpg

·      :外观设计 

          第二款别墅,外观尺寸为13.76×9.6米。其外观设计简约而不失格调,米黄色的墙体搭配红色的坡屋顶,显得温馨而舒适。门廊处的设计简洁大方,两根立柱支撑起门廊,给人一种稳重之感。

3.jpg

·      :室内设计 

          平面图显示,这款别墅同样设有四间卧室和两个卫生间,布局合理。客厅宽敞明亮,餐厅与厨房相连,方便日常生活。整体空间利用较为紧凑,适合家庭人口适中的住户。


4.jpg

          这两款乡村一层别墅设计,在满足基本居住功能的同时,都注重了外观的美观性和空间的实用性。无论是从建筑风格还是内部布局来看,都能为居住者提供舒适的生活环境,是乡村建房的不错选择。

转载请注明="://www.lemeizhai.com/" target="_self">://www.lemeizhai.com/

 
· 大基地豪宅,大面积别墅住起来就...
· 定制一套有特色又舒适的别墅,让...
· 哪些违建可不用拆除(如何判断房...
· 超大落地窗设计的三层别墅文化石...
· 横厅好还是竖厅好 (横厅与竖厅的...
· 小别墅装修设计营造温馨家园的设...
· 农村住上一套这样的房子别提多舒...
· 气派时尚的三层新中式
  关于我们 网站事务 帮助中心
客服热线:400-079-6579
客服QQ:10928711 10928755 10928799
地址:山东省潍坊财富大厦1801
 

预定须知
顾客必读
配送方式

 


Copyright 2016 www.lemeizhai.com All Rights Reserved ICP备案序号:鲁ICP备2026012448号-1
轩鼎房屋图纸 电 话:0536-3385581 3385582 传 真:0536-3385581 地 址:山东省潍坊财富大厦1801


keywords:房屋设计图 房屋设计图 农村房屋设计图 农村房屋设计图 建房图文