21世纪,飞速发展的今天人们面临各种各样的压力社会竞争非常激烈,城市快节奏的生活让人变得日益压抑、烦闷不安,崇尚自然惬意的生活成为一种新的潮流风气。向往自然的清新是每个人内心的独白,在住宅方面,法式别墅以其追求自然与建筑的完美融合的建筑风格,更是另人向往的。那么今天小编要介绍三款具有浪漫风情的法式风格别墅,可以说是丰富多彩的别墅风格中最特别的一个。浓重的法兰西风格给你最特别的住房体验。
法式小别墅一
▼

房屋基本信息


法式小别墅二
▼

房屋基本信息


法式小别墅三
▼
三层小别墅,小资情怀,彰显大气之风!

设计说明:
此别墅采用标准的“逢节居住型”户型设计理念,考虑到业主兄弟几人平时在外打拼,在逢年过节时才会回家小住团聚,户型设计中虽无主人房设计,但也是考虑业主的实际情况,整体设计更加人性化,居住体验感好。
建筑立面图


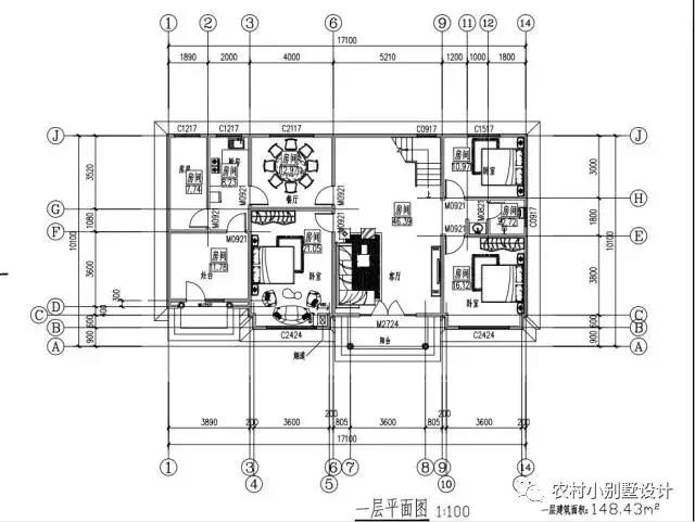
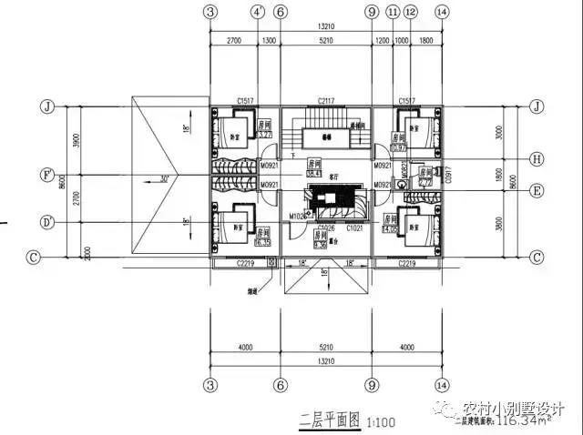
平面布局图


此户型有7间卧室,是完全按照业主需求所设计,南向卧室大小基本一致,是以免妯娌之间各有说辞,一层客厅供大人使用,二层客厅供孩子使用,互不干扰,采用法式风格,大面积开窗,采光充足。不论什么风格的别墅只要让人舒适感到轻松就是好的别墅,今天这几款法式别墅建在村里一定倍儿有面子。