相信在坐的各位都有能力也有钱,在农村建一套漂亮华丽的别墅,中国自古就有修身齐家平天下的这句话,修身那就不用说了想必各位都知道,齐家那么就一定要有一个家,有家就一定要有一套房,因为房子是结婚的资本,总不能结了婚就没有地方住吧。没有房子就结不了婚,没结婚就没有自己的家,没有家,何来齐家平天下之说?由此可见房子的重要性,如果在农村你建上一套好的别墅,那么你就可以从此走上人生巅峰,迎娶白富美了。
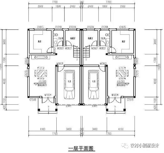
户型一:
效果图

一层平面图

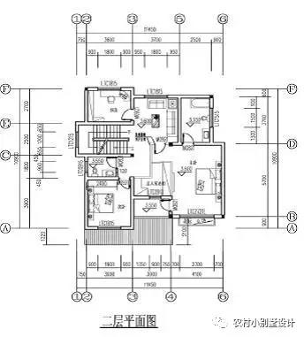
二层平面图

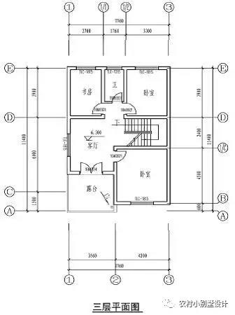
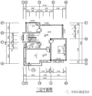
三层平面图

本户型占地面积约180平方米,建筑面积约400平方米,共三层,可以兄弟双拼建造,造价含装修在50万以内,造型方正,功能齐全,采光好。
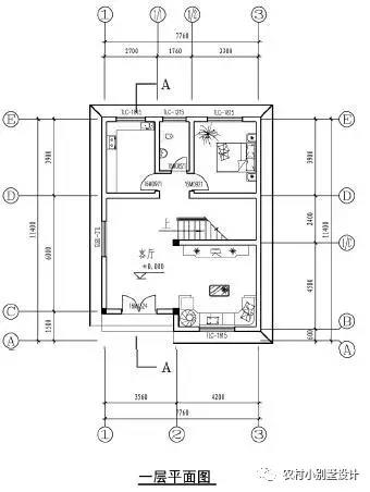
户型二:

效果图
占地面积113.84平方米,布局合理,含车库,共三层,建筑面积320平方米。可以兄弟双拼。结构形式可以为框加结构,也可以采用砖混结构,根据实际情况选择。
平面图



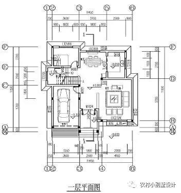
户型三:

占地面积113.84平方米,布局合理,含车库,共三层,建筑面积320平方米。可以兄弟双拼。结构形式可以为框加结构,也可以采用砖混结构,根据实际情况选择。



转载请注明出自轩鼎别墅设计:://www.lemeizhai.com/