别墅按我们当地人的叫法,叫小洋楼,那是因为别墅功能齐全,就像一整栋大的楼房一样。房子还是自建的好,自建的放心不用担心偷工减料,因为那是自家的房子 是自己住的 。住在自己亲手建造的别墅里别提多开心了 ,回家给父母建一栋别墅,父母不仅脸上有光自己还倍儿有面子。
别墅基本信息:
占地尺寸:12.3米x9.4米
占地面积:106.71平方米
建筑面积:195.9平方米
建筑结构:砖混结构
建筑高度:9.48米
造价估算:19-22万
基本图纸:
效果图
一层平面图:

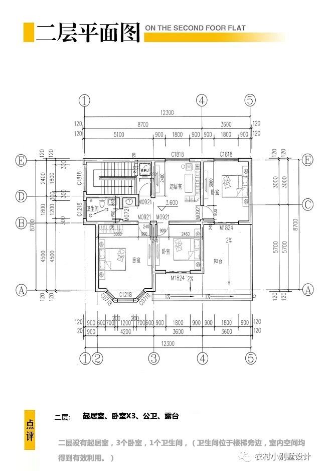
二层平面图:
总之落叶望归根,衣锦复还乡!回老建房,其实很简单,单单“故乡”两个字就足以现游子的思念,家是每个人温暖港湾,不论何时何地,不论受没受过委屈, 家里都有一个可以倾诉的人。
转载请注明出自轩鼎别墅设计://www.lemeizhai.com/