随着国家的不断发展,农民工的权益不断提升,随着经济政策的不断落实,每个人都有钱赚,有房住。虽然城里里房价也一直下降,但普通收入家庭还是买不起,那些中产阶级才勉强买得起,那些普通收入家庭在哪儿买房呢?嘻嘻他们不买房,那不禁要问了,不买房,他们住哪儿呢?当然是在乡下建别墅呢,你可能认为这是胡扯呢,其实不然,农村自建房子的优势是不用买地皮用自家的地基,城里买房为什么这么贵,不用说想必大家都知道。

小编介绍的这款别墅为欧式外观的三层现代小别墅,大气考究的设计,中式美学融合,使别墅造型简约规整,低调中透露着时尚,体现着主人不凡的审美与艺术气息,户型设计符合咱农村人的生活习性,也称得上极品。
房屋信息
☑ 占地尺寸:12米x10.9米
☑ 占地面积:120平方米
☑ 建筑面积:323.45平方米
☑ 建筑结构:砖混结构
☑ 建筑高度:12米
☑ 造价估算:25-32万
全景图:

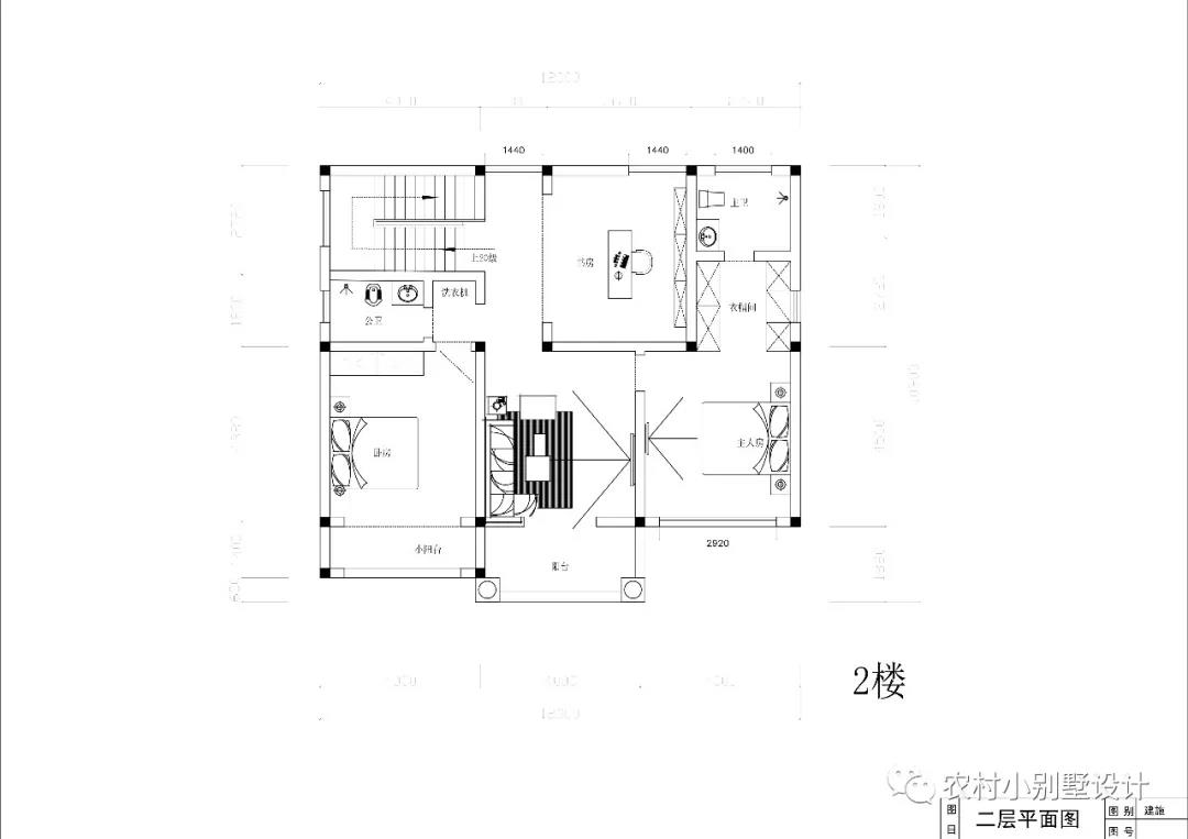
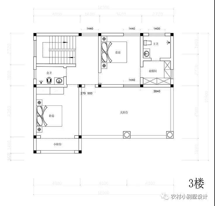
室内布局

一层:起居室 餐厅 卧室2个 厨房 卫生间,

二层:卧室4间 起居厅 卫生间2间

三层:卧室3间 卫生间2间 露台
转载请注明出自轩鼎别墅设计://www.lemeizhai.com/