三层别墅的好处是能够保证各家庭成员间的生活作息分开,从而互不打扰,一层可以给家中长辈居住,二层给父母,三层留给自己,年轻人的生活作息与老人不同,只有分开才能保证隐私,互不打扰。三层就能满足三代人的居住,这样老年人就那得到很好的环境,年轻人也不会打扰到老年人的休息。三层就很合理不需要建太高,实用就行。
现代别墅户型:

开间:9米
进深:11.5米
占地面积:99平方米
建筑面积:386平方米
室内布局设计图(只包含主体)
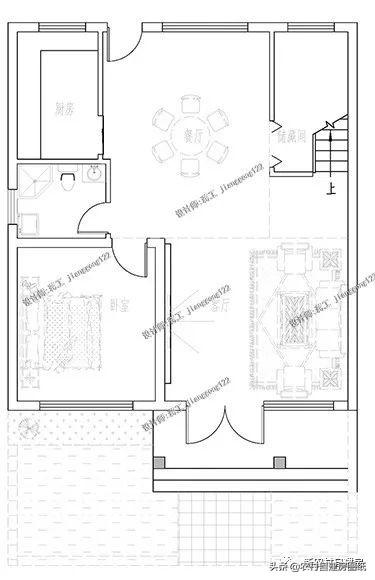
一层:

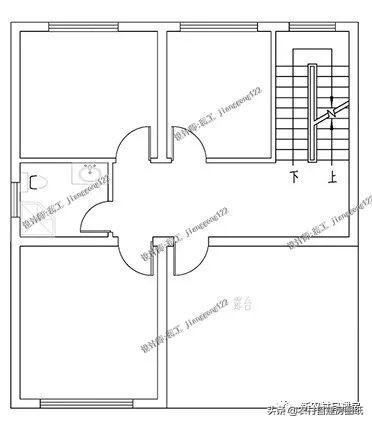
二层:

简单大气的欧式别墅,三层十分不错它兼具时尚和休闲功能于一体,非常适合三代人居住,室内的卧室设计的比较多,三层共8间卧室,不管是自住还是待客都足够了。这款别墅从外形来看很注重隐私,隐私在现代人眼里特别重要,不管在哪里隐私安全一直是人们关注得问题 。好的别墅就一定注重隐私。
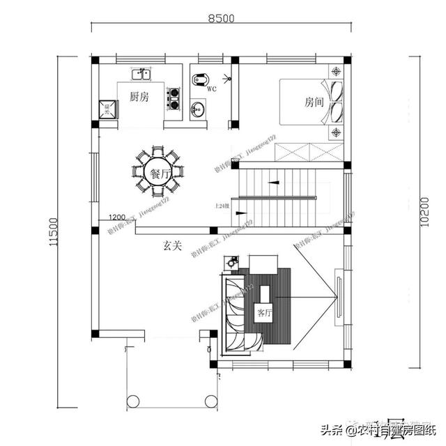
户型二

开间:8.5米
进深:11.5米
占地面积:89平方米
建筑面积:268平方米
室内布局设计

一层:设玄关、餐厅、厨房、厕所、卧室,功能齐全。

二层:卧室(3个)设衣帽间阳台厕所,另设有客厅。阳台通风晾晒两不误,像这样的别墅你值得拥有。

三层:卧室{2}、洗手间、家庭厅、娱乐室超大阳台。
转载请注明出自轩鼎别墅设计://www.lemeizhai.com/