钱乃身外之物,活着挣不完死了带不去,有钱就得花,比如做点有意的事或建一栋别墅好好享受,钱别总攒着,会花钱就会挣钱。钱没了大不了再整,人要是没了可什么都没了,人不光要想着未来还要活在当下,只有活在当下才能着眼未来。
今天这款结构采用不对称设计的别墅,造型气派新颖,让人过目不忘。这款别墅不论配色还是建筑设计都非常不错,可见设计师多么用功。他的外墙是以黄色真石漆装饰,屋顶是灰色琉璃瓦,弧形采光窗和入户拱门十分大气。

1、户型编号:JF9012
2、主体参考造价:45-58万
3、占地面积:152平方米
4、建筑面积:432平方米
5、开间10米,进深16.11米
6、="://www.lemeizhai.com/PictureShow.asp?PicID=1045&PicClassID=91" target="_self" title="框架结构">框架结构,建筑高度12.242米
别墅镜像图

别墅细节图


全景展示图



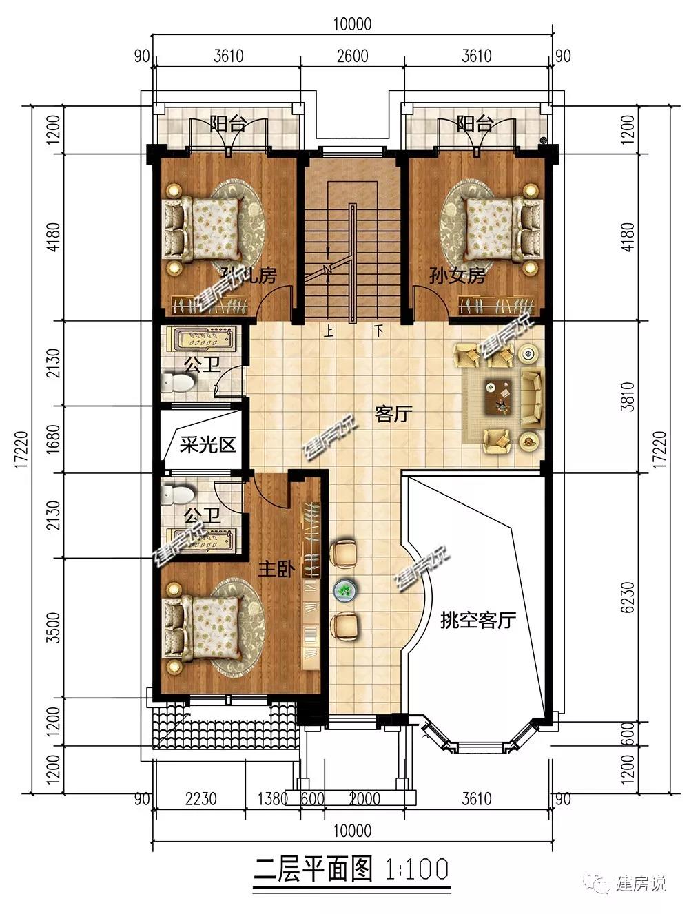
平面布局图

一层:入户即客厅,利于接待客人;设有独立的车库,功能齐全;厨房、餐厅划分在一侧,便利生活。

二层:3个卧室主次分明;客卧室外的多阳台设计,利于通风与采光;挑空客厅复式层,让室内更加明亮。

三层:功能布局基本与二层一致,3个卧室,1个客厅;露台满足晾晒、活动等需求。
转载请注明出自轩鼎别墅设计://www.lemeizhai.com/