如果有一辆车和一套豪华别墅摆在你面前,让您在两者中选择一样,您会如何抉择?相信很多人其实现在就面临着这个选择。毕竟车和房子都是必需品,而且都不是一件小数目,必须一样一样的置办,而先卖哪一样就要看自己的情况而定。
今天我们介绍的这款别墅,不仅面积合适中,而且采光和布局都极佳。下面让我们一起来看看。
效果图:

基本信息:
占地面积:162.32㎡
建筑面积:396.59㎡
建筑尺寸:16.56m×16.16m
图纸编号:703
建筑结构:砖混结构
户型概况:7室3厅5卫1厨1储物1衣帽1书房
土建参考造价:60万元(不包含室内装修费用)
全景图:




细节图:




内部布局设计图:

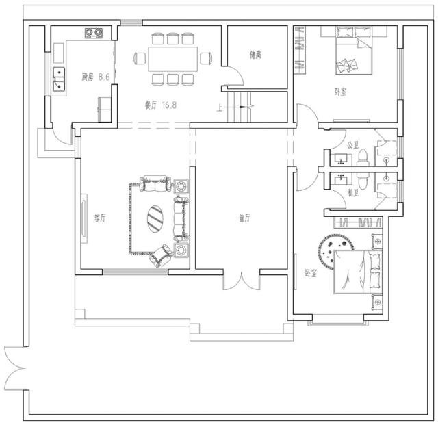
一层设计图:设有客厅厨房和餐厅,都在左侧,右侧还有两间卧室,配备两间卫生间,使用方便。

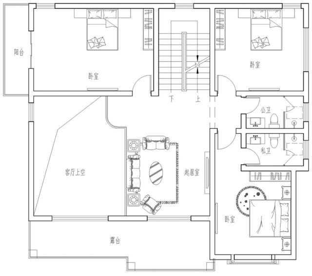
二层设计图:从二层设计图中可以看到一楼的客厅为挑空客厅,其次还有起居室和两间卧室。

三层设计图:两间卧室和一间衣帽间,还有一间书房。三楼左侧还有="://www.lemeizhai.com/newsshow.asp?ArtID=873" target="_self">大面积的露台,观景方便,休闲娱乐于一体。
转载请注明出自轩鼎别墅设计://www.lemeizhai.com/