建一栋别墅又舒服有有面子,展现了自身的实力又提升了生活档次,在现在这个社会,人们最看重的就是实力,你没有实力别人会看不起你,就连结婚都难。房子不仅仅是一个住宿的地方,它更多的是自身实力的展现,有了实力才会被人看得起。
今天小编要介绍两款四层别墅,第一款只是一个展示。
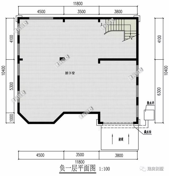
户型一:

11.8×10.4米,框架结构,带地下室的一款户型,墙面装饰用真石漆,材质的使用感类似于大理石面砖一般,看起来高端上档次。
布局说明:

地下室做车库和其他生活中的用途。

地面上一层内配一室两厅一厨一卫,前后通透,室内用到小台阶,屋后面还用上了小台阶。

二层配三室一厅两卫,前后各设一个阳台,衣帽间方便储物。

三层有两室一厅一卫,书房方便办公和学习,露台方便晾晒和看风景。
四层别墅户型二:

11×10.3米,框架结构,这款户型是平屋面设计的,墙面用到真石漆、浮雕、构件和飘窗等设计,非常的精致。
布局说明:

一层内配一室两厅一厨两卫,娱乐室一间,使用的是双跑直角楼梯。

二层设计了三室一厅两卫,配书房和生活阳台。

三层的布局和二层是一样的。

四层设以两室一厅,室外用上了较大面积的露台和观景凉亭等
转载请注明出自轩鼎别墅设计://www.lemeizhai.com/