现代别墅都是经过设计师设计的,房屋图纸是他们的工作,每一个设计师都是奇思妙想的,正是有了他们的努力才有了各种各样不同款式的别墅,想要建好别墅图纸很关键,这要到专业的网站去购买。
效果图

今年建一栋这样的别墅,日子会越过越红火,一路旺到底。别墅外墙红色真石漆装饰,屋顶是红色琉璃瓦,整体装饰简约大气,让谁看了都想住进去。
1、户型编号:JF9101
2、主体毛坯参考造价:30-38万
3、占地面积:105.9平方米
4、建筑面积:289.95平方米
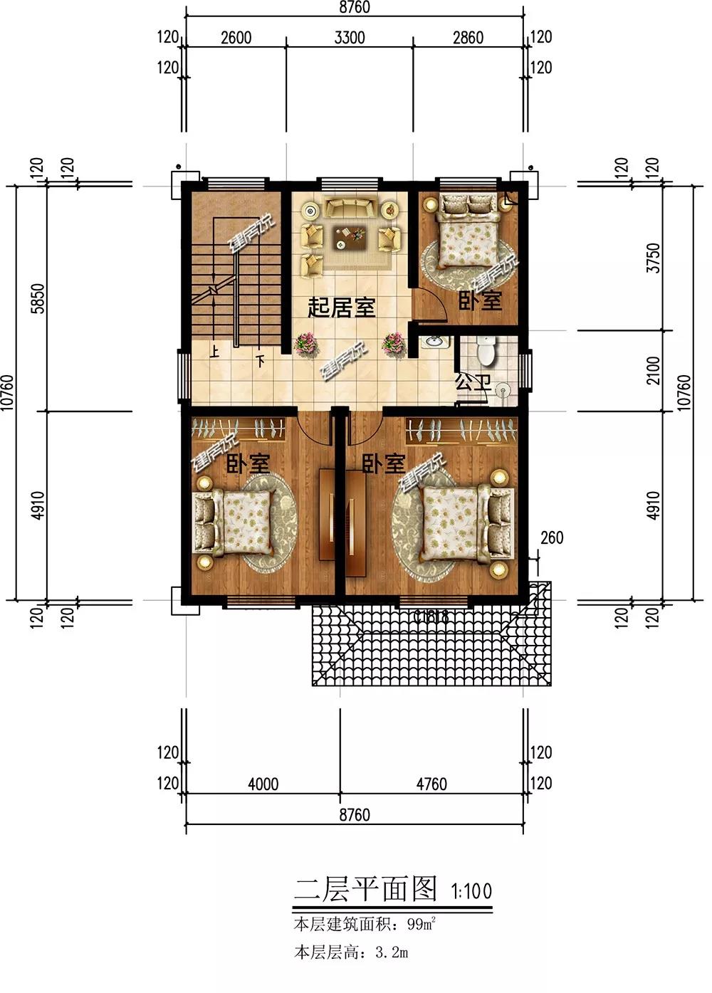
5、开间8.76米,进深10.76米
6、="://www.lemeizhai.com/PictureShow.asp?PicID=1071&PicClassID=88" target="_self" title="框架结构">框架结构,建筑高度12.5米
别墅镜像图

别墅细节图




平面布局图

一层:入户是宽敞的客厅;厨房、餐厅划分在一侧,布局合理;卫生间设置在楼梯下,空间利用得当。

二层:3个卧室大小适中,居住舒适舒心;起居室小而温馨,一家人其乐融融。

三层:除了一个卧室与起居室外,留足空间做露台;晾晒与活动空间大。
转载请注明出自轩鼎别墅设计="://www.lemeizhai.com/" _src="://www.lemeizhai.com/" target="_blank" style="color: rgb(102, 102, 102); text-decoration-line: none; font-size: 13px; font-family: 宋体; white-space: normal; background-color: rgb(255, 255, 255);">://www.lemeizhai.com/