今天我们来介绍一款面积较为宽敞的二层别墅房,别墅整体是较为清新风的现代款别墅。配色是浅色系,给人较为简单欢快的感觉,让我们一起来看看吧:
别墅外墙纯白色的石砖装饰,柱子和栏杆也是白色,搭配蓝色的琉璃瓦装饰屋顶,别墅还有挑空客厅的设计,使别墅更加大气美观。
别墅效果图:

全景图:


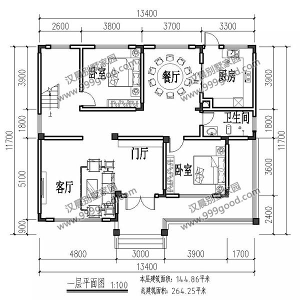
一层设计图:进门后首先是门厅,左侧是客厅,进入别墅其他部分之前还有隔断,这一样能较为好的保护隐私问题。其他还设计有厨房餐厅,两间卧室和一间卫生间
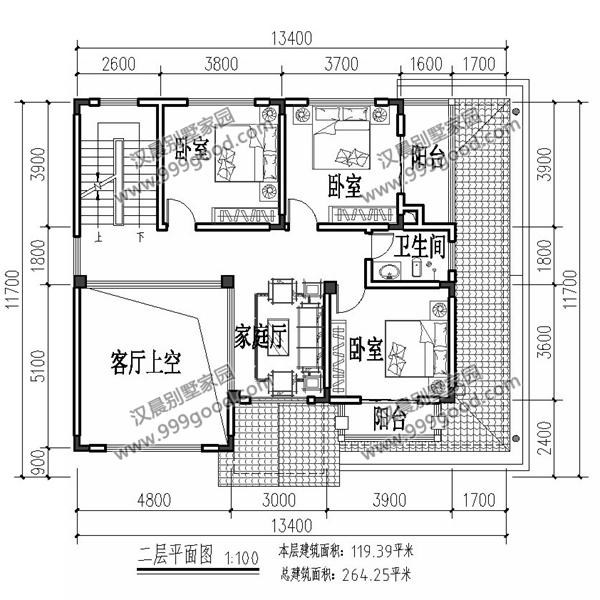
二层设计图:设有三间卧室和家庭厅,一件卫生间,还有阳台
转载请注明出自轩鼎别墅设计="://www.lemeizhai.com/" _src="://www.lemeizhai.com/">://www.lemeizhai.com/