今天我们来介绍一款二层的现代风小面积别墅房。别墅整体色调偏深色,是比较典型的现代风格。还有欧洲法式设计装饰,让我们来看看
别墅外墙是白色,一层是面砖,二层是面漆装饰。屋顶是青黛瓦。窗框是黑色的。
别墅效果图:

基本信息:
图纸编号: TC2132
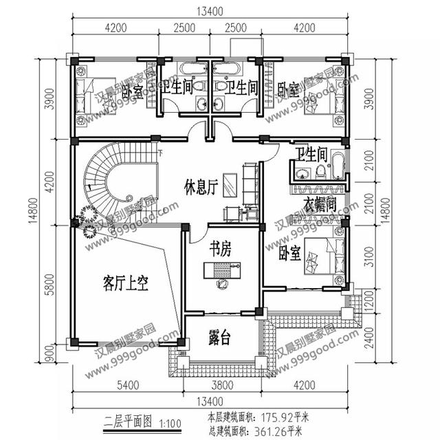
规 格: 13.4米X14.8米
占地面积: 185.34平米
建筑面积: 361.26平米
主体预算: 43万左右
全景图:


内部布局设计图:

一层设计图:进门后首先是门厅,其次是客厅厨房和餐厅,还有一间卧室和意见棋牌室,两间卫生间

二层设计图:休息室,三间卧室各自带有卫生间,一件带有衣帽间,还有一间书房,正面还有小露台
转载请注明出自轩鼎别墅设计图="://www.lemeizhai.com/" _src="://www.lemeizhai.com/">://www.lemeizhai.com/