哪个地区的人建别墅多呢?但当然是南方人了,北方建别墅的不多。建别墅不是为了多么有面子,而是让自己的生活更好,建一套好的别墅很有必要。小编今天特意选了两款适合在南方建房的别墅。这两款别墅各有各的优点,你喜欢哪款来看看吧。
别墅一:

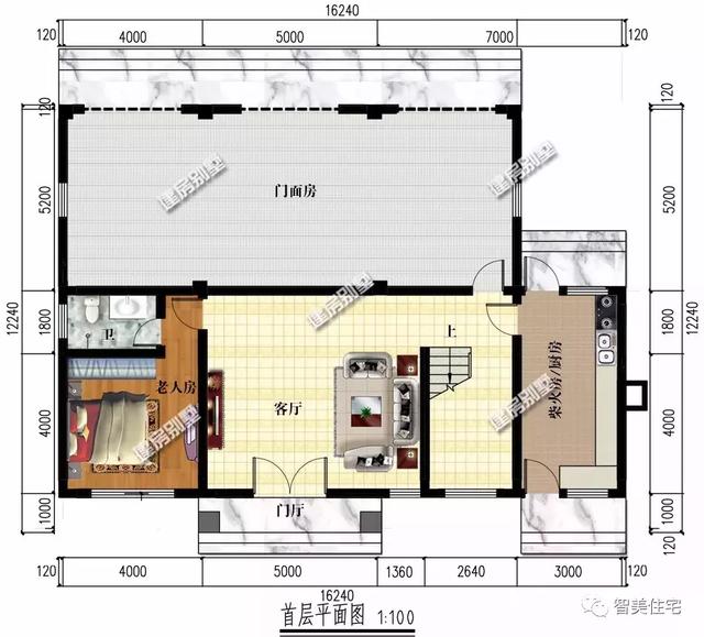
16.24×12.24米,外墙面用黄色的面砖和浅黄色的真石漆装饰,屋面配红瓦,户型简单而周正。
平面图:

一层:设有一排的店铺,一个带独卫的老人房和厨房等

二层:设有三室一厅一卫,两个主卧室都设有飘窗且带衣帽间,还有休闲娱乐室和储物间配置

三层:设有一间卧室、家庭客厅和健身房等,室外配观景露台。
别墅二:

16.1×12米,框架结构和砖混结构均配全套施工图纸,带落地大窗设计,外墙面用真石漆装饰,屋面配蓝色琉璃瓦。
平面图:

一层:设有挑空的客厅、南北通透设计,一间储物室和两个卧室,室内空间不显紧凑而居住舒适

二层:设有一间豪华主卧室,内设衣帽间、独卫和生活阳台

三层设有两间备用的卧室和健身房,室外设观景露台。
转载请注明出自轩鼎别墅设计://www.lemeizhai.com/