不想到城里买房,想要在乡下建别墅,养点鸡鸭鱼鹅什么的。今天小编推荐一款能养殖牲畜的二层中式别墅,这个比城里还惬意,闻得是清新的空气,吃的是绿色无公害的食物。反正总要比在城里呼吸PM2.5强吧。这款别墅真心不错,一定要看。
效果图:

别墅信息:
编号JZ065
开间:10.12米
进深:12.72米
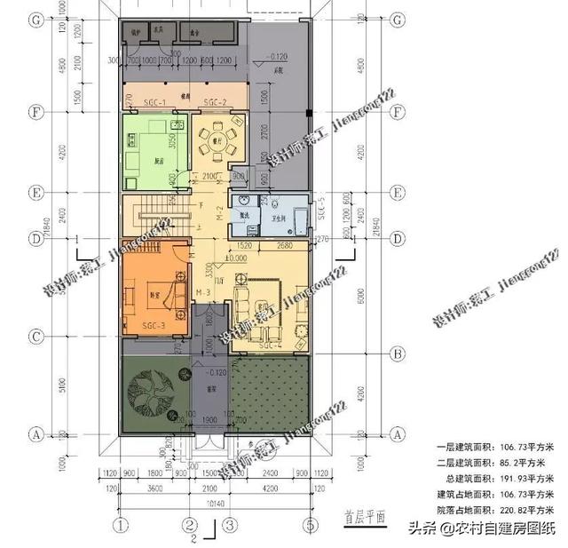
占地面积:106.73平方米
建筑面积191.93平方米
镜像图:

建筑立面采用灰色的坡屋顶,外墙为复古的灰白色调,立面结合平面布局,凹凸有致,整个立面给人清新典雅,朴素大方的感觉。庭院的设计,使居住空间更现代、简洁,非常宜居。搭配灰色的面砖,栏杆为灰色方钢加玻璃栏板,主体造价20万,经济实用又美观大方。
室内设计:

一层:宽敞的客厅,朝南的卧室,厨房和餐厅相临,有后门通向后院,后院有农具间,鸡鸭舍和锅炉房

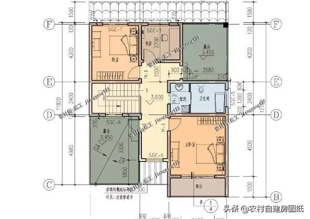
二层:设计有三室一厅和两个露台。
转载请注明出自轩鼎别墅设计://www.lemeizhai.com/