农村门面房不值钱?那你可就想错了。虽然现在网络购物的发达,时刻冲击着实体经济的发展,随着一些大型工厂,食品和农产品加工企业都往农村效区乡镇搬迁,所以农村商铺却还是很火热。在乡镇有一栋带商铺的别墅可是很赚钱的。今天给大家推荐一款二层现代带商铺的的别墅,来看看吧
效果图:

别墅信息:
占地面积:208.84平方米
建筑面积:350.88平方米
开间14米,进深21.68米
砖混结构,建筑高度8.1米
别墅细节图:


别墅外墙是由白色真石漆和文化石贴面砖搭配装饰,再用黑色真石漆装饰门窗和房屋边沿,精致的玻璃窗,木质门廊,住在这栋现代风的别墅里真享受。
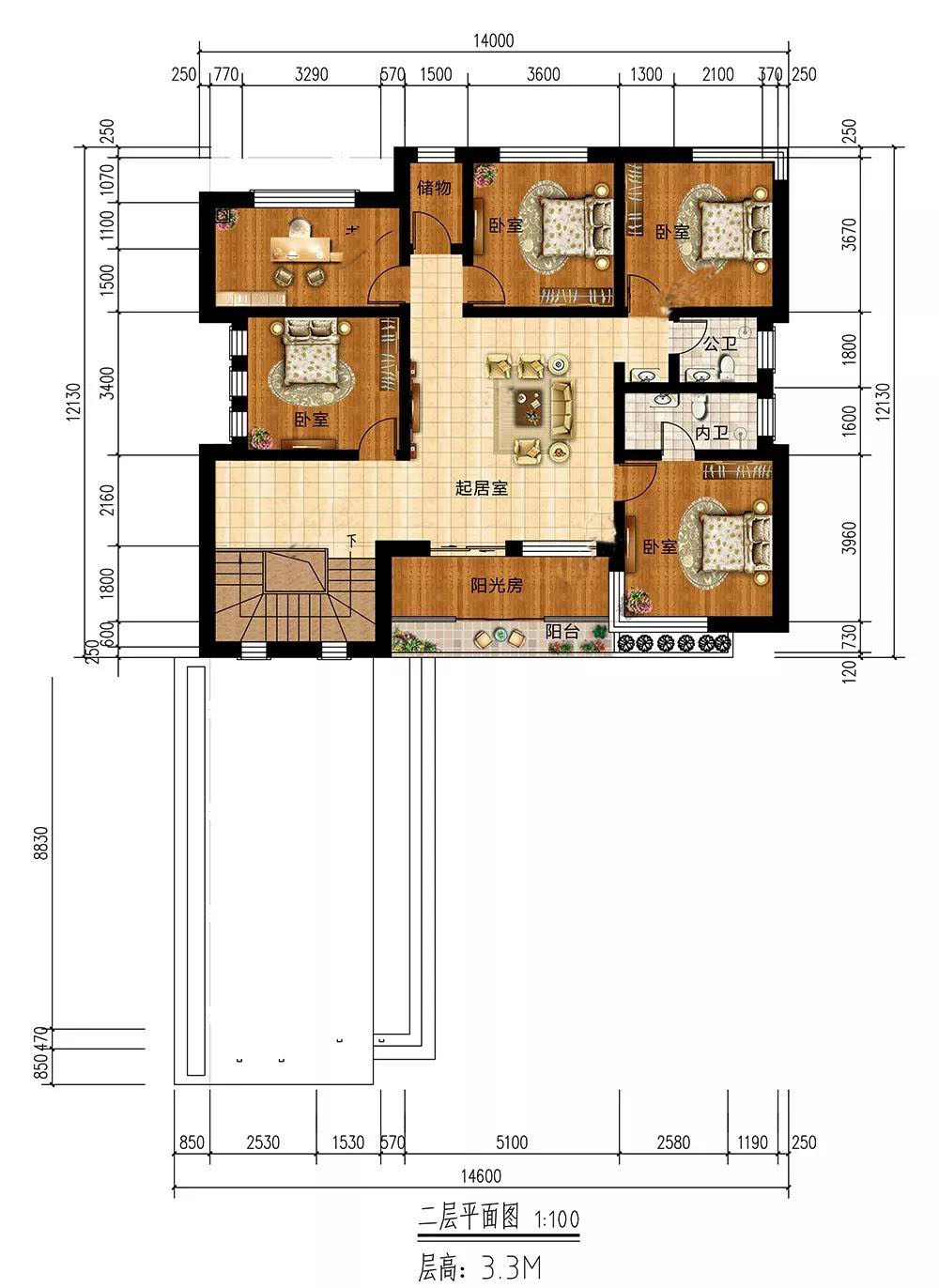
平面布局图:
一层:入户是茶厅,方便接待客人,客厅设置在后,家人聚会热闹温馨;2个卧室2个内卫,方便家人居住;厨房餐厅单独设置在一边,远离油烟,用餐卫生;商铺自家不做生意可以用来出租。

二层:设置起居室,睡前家人聚在一起看电视聊天,促进家人感情;4个卧室,满足家人居住需求;设书房,办公学习不会被打扰;阳光房连通阳台,可以在此喝茶看书,享受生活
转载请注明出自轩鼎别墅设计="://www.lemeizhai.com" _src="://www.lemeizhai.com">://www.lemeizhai.com