青山绿水是现在农村的现状,趁着现在政策允许,赶快回家建房吧!说不定会为美丽乡村建设做一份贡献呢。城里的生活压力大,不如在农村过的舒服,回乡建房才是聪明的选择。今天小编推荐一款新中式别墅,说不定能帮到你呢。
效果图:

别墅信息:
占地面积:110平方米
建筑面积:220平方米
开间12.74米,进深11.24米
砖混结构,建筑高度9米
别墅细节图:


别墅屋顶是灰色屋顶板瓦,外墙是用灰色和白色真石漆装饰,深褐色的木质围栏,精美的镂空围墙,书香气十足。
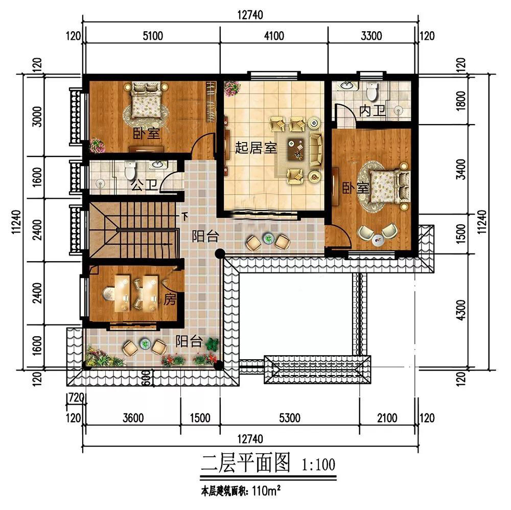
平面布局图:

一层:入户庭院,种种花草,丰富生活;设有中堂,方便召开家庭会议和招待客人;2个卧室和卫生间,老人居住方便;厨房餐厅一体,用餐干净卫生。

二层:设起居室,家人一起看电视,促进感情;2个卧室,主卧分明,温馨舒适;设封闭式书房,办公学习不被打扰;闲暇时,可以在小阳台上,看书喝茶,享受生活。
转载请注明出自轩鼎别墅设计="://www.lemeizhai.com" _src="://www.lemeizhai.com">://www.lemeizhai.com