如果比有钱,湖南、福建、广州等地的那是没的说了,而且农村地区都建小洋楼,就拿福建来说,那是一套比一套好,一套比一套豪华,真叫人羡慕啊!那么今天小编就推荐一款在湖南地区不算多么豪华的别墅,但是他却十分漂亮。
效果图:

别墅信息:
占地面积:188.25平方米
建筑面积:516.43平方米
开间12.85米,进深15.67米
框架结构,建筑高度14.221米
别墅细节图:


别墅屋顶是蓝色波形瓦,外墙是用黄色和白色真石漆搭配装饰,搭配霸气的罗马柱,大气的落地窗,精致的花瓶围栏,整体气质清新,非常温馨。
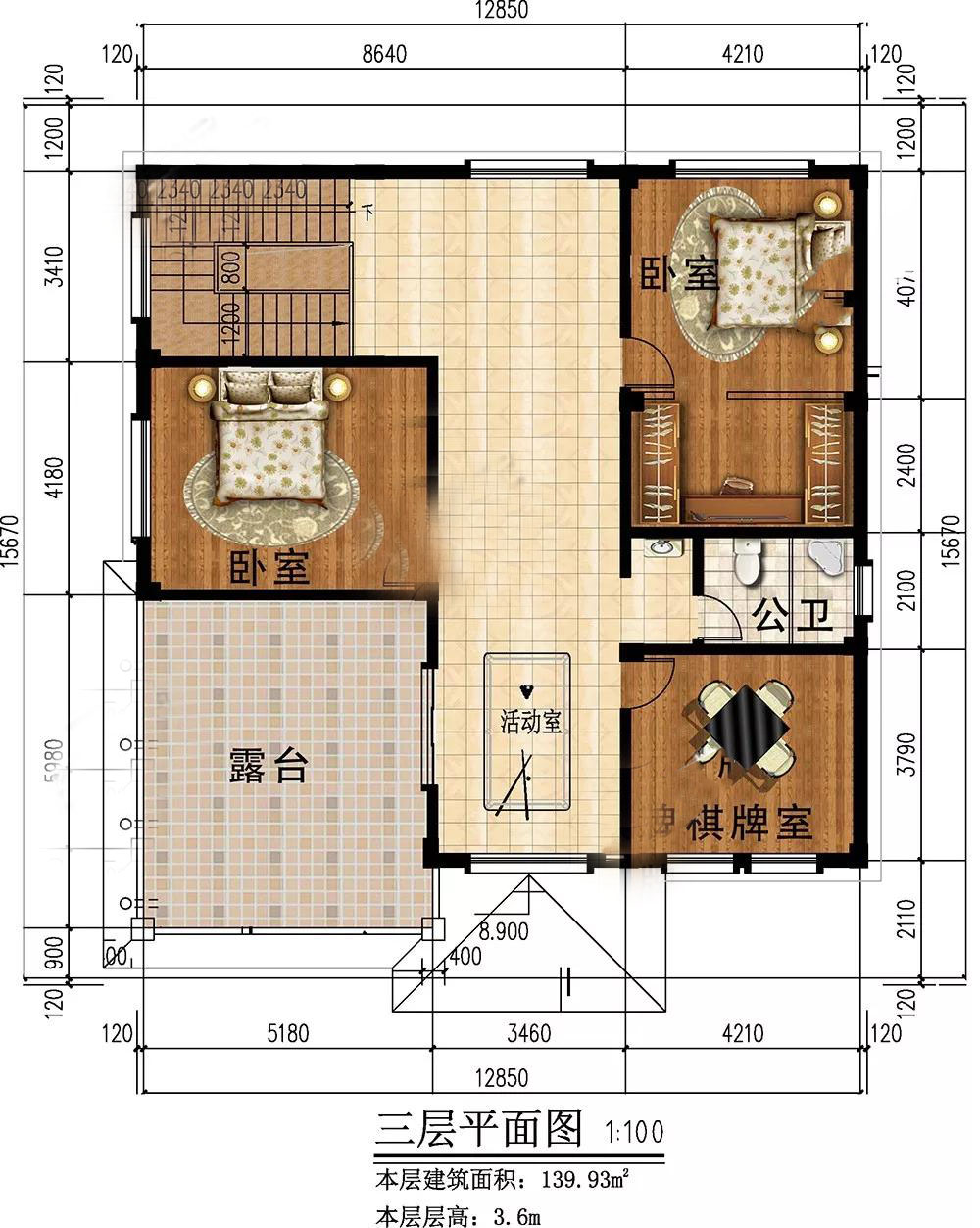
平面布局图:

一层:入户是宽阔的客厅,方便接待亲友;2个卧室,主次分明,其中一间可以做老人房;厨房餐厅干净整洁,用餐卫生;设有后门,方便进出。

二层:宽敞的客厅,家人可以在此谈心休闲;3个卧室2个卫生间,居住舒适;露台宽阔,可以在此种花喝茶,惬意享受。

三层:2个卧室,可以做客房招待亲友;棋牌室方便家人休闲,放松心情;设活动室,增加生活娱乐;露台,打造成空中花园或阳光房,在此赏花观景,惬意十足
转载请注明出自轩鼎别墅设计="://www.lemeizhai.com" _src="://www.lemeizhai.com">://www.lemeizhai.com