在农村建别墅就是为了享受,怎样建别墅,和建什么样的别墅是我们考虑的问题。今天小编给大家推荐一款三层新中式别墅,这套别墅占地面积不大,,所以三层的建筑面积约368平,但是也足够一个正常家庭使用,并且内部功能也很齐全。框架结构利于防震防灾,整套别墅不包含装修、门窗等主体造价约为45万。
效果图:

别墅信息:
占地面积:144平方米
建筑面积:368平方米
开间15.24米,进深10.2米
框架结构,建筑高11.9米
别墅细节图:


别墅屋顶是深蓝色波形瓦,外墙主要采用的是白色真石漆装饰,用灰色真石漆做点缀,搭配精致的浮雕,别墅精美大气。
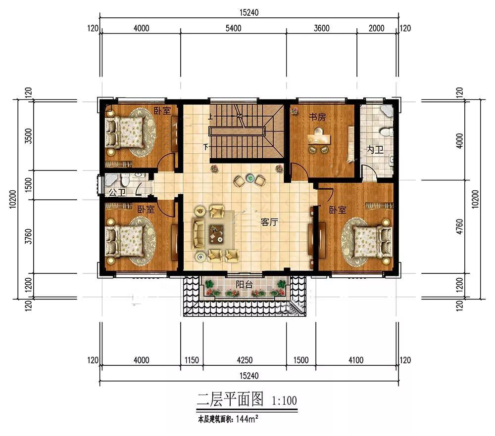
平面布局图:

一层:入户是餐厅客厅,家人聚餐聊天其乐融融;设有KTV,空闲时邀些朋友来唱歌,放松心情;2个储藏室,可用来堆放闲置物品。

二层:客厅茶室一体,家人可在此品茶看书,聊天休闲,促进家人感情;3个卧室,主次分明,居住适宜;安静的书房,在此办公作业,不会被打扰;在小阳台上种花观景,也是乐趣十足。

三层:3个卧室,居住有余可留做客房,或打造成健身房使用;大大的露台,可以用于晾晒衣物,或打造成空中花园,在此种种花草,享受慢生活。
转载请注明出自轩鼎别墅设计="://www.lemeizhai.com" _src="://www.lemeizhai.com">://www.lemeizhai.com