这些="://lemeizhai.com" target="_self">农村自建房屋的设计图纸非常大气和实用,他们只是理想的住宅
城市生活繁忙,生活节奏快,没有喘息的机会。与乡村生活相比,这里很安静,风景优美,空气清新。现在,随着新农村的建设,交通变得便利,道路已经修到了家门口,许多人选择回家盖房子。“乡村别墅”已经流行了一段时间,而且有越来越多的乡村别墅。建造一个适合你的房子,并且有一个合理实用的布局是非常重要的。以下小系列带来了几栋别墅,非常实用,是理想的住宅。
方案一:简单大气的农村两层自建住宅YH-A-2002
该别墅一见钟情,完美诠释了建筑的奢华气度,体现了业主的浪漫情怀。首层设计符合农村人的日常生活要求。开放式客厅设计增加了空间宽度,使视觉效果更加突出,使客厅看起来更加透明!
朴素大气的农村两层自建住宅
简易大气农村两层自建住宅参数



简单大气小区二层自建住宅一楼平面图
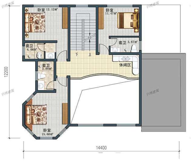
简约大气的农村二层自建住宅二层平面图
方案二:YH美丽乡村三层建筑图片集-A-3070
房屋概况:公寓设计简单美观,采用坡屋顶,是农村常见的屋顶类型。三层露台非常实用,可以用来晾晒和欣赏风景。它还可以创造一个创造性的屋顶花园,创造一个充满活力的生活环境。外墙用淡白色的真石漆装饰,四周有窗户,室内有透明的灯光。建设不难,成本不高,特别适合普通农村家庭。
美丽乡村的三层建筑图片全集
美丽乡村三层建筑图片采集参数




美丽乡村三层建筑图片集一楼平面图
美丽乡村三层小楼图画书二楼平面图
美丽乡村三层楼建筑图画书三层楼平面图
方案三:经济适用房设计图包括外立面图YH-A-2021
住宅概况:农村人最喜欢的别墅是经济的、低成本的、受欢迎的。二楼是农村最建的。该别墅采用黄色真石漆外墙,二楼的大露台不仅可以欣赏风景,还可以增加室内照明,户型经典,布局合理。
经济适用房设计图,包括外立面图
经济适用房设计图包括外观图参数



经济适用房设计图包括外立面图的首层平面图
经济适用房设计图包括外立面图的二层平面图
转载请注明出自轩鼎别墅设计="://lemeizhai.com" target="_self">://www.lemeizhai.com