="://lemeizhai.com" target="_self">中式庭院的豪华氛围,一定要回到村里去营造一套,生活是完美的!
如今,农村自建住宅的风格丰富多样,每种设计风格都有不同的特点。有些人特别喜欢中国传统文化,因为他们总是被它含蓄的美深深吸引。



中式住宅一直强调“人与自然的和谐关系”,这是其最传统、最精髓的地方,现在越来越被高端购房者认可和接受。中式别墅的传统文化内涵赋予了其独特的市场定位。
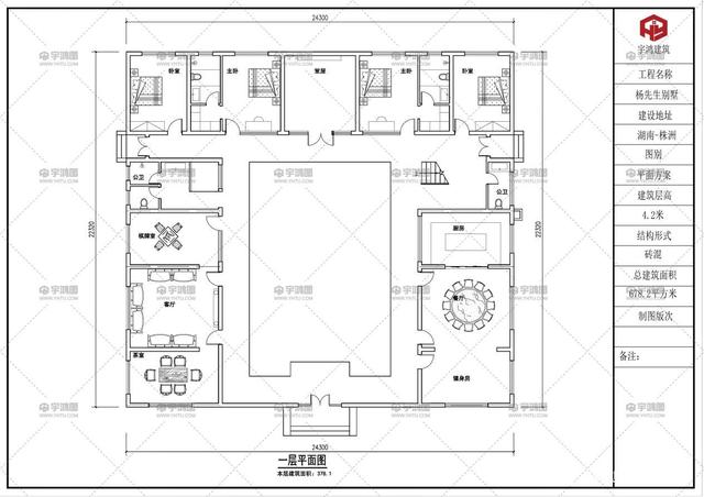
今天带给你的这座豪华中式别墅,占地378.1平方米,宽24.3米,深22.32米。
别墅整体外观采用白墙灰瓦的风格,用实木窗户、护栏和屋檐装饰,处处透露出中国风格的气息。从外面看整个,有一种和谐的感觉。
别墅的设计亮点在于庭院的大面积,可以真正在晚上散步,白天晒太阳。二楼房间前面有一条长长的走廊,可以直接走到露台。在左边,你可以设置一个棋盘和围棋,在右边,你可以设置一个茶具来讨论茶艺
这样的别墅建在农村,这真是人人羡慕的生活。
附上图形设计图纸:


从大门出去的第一层是一个大的内院,在主房间的对面。有四个卧室与主房间并排,走廊周围有两个侧门打开。楼梯井设计在右边,接下来是厨房、餐厅和健身房。左边是公共卫生室、棋牌室、客厅和茶室。
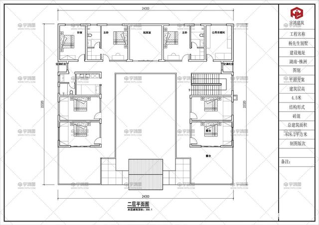
二楼有七间卧室和一间公共衣帽间。两间主卧室有独立的浴室和衣帽间,主卧室上方有一个客厅。左右两侧前面有一个大露台。
以这种方式设计的中国别墅真的给人一种古色古香的感觉。你怎么想呢?
转载请注明出自轩鼎别墅设计="://lemeizhai.com" target="_self">://www.lemeizhai.com