如果你有550,000元,你愿意建造这座="://lemeizhai.com" target="_self">三层的新中式别墅吗?
今天,我想介绍一套最新发布的三层新中式别墅图纸。主要预算是55万元,这不是吹牛。这座3层的新中式别墅完全可以抹杀同类型别墅的图纸。如果你有550,000元,你愿意建造这座三层的新中国别墅吗?别担心,在回答我的问题之前先看看图纸。
3层新中式别墅效果图




三层新中国别墅数据
图纸号。查看评论区
建筑面积:518.43
占地面积:194.06
主要预算:550,000
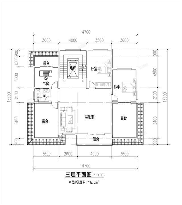
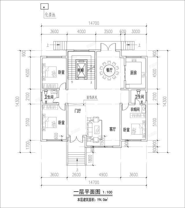
三层新中国别墅计划




别墅效果图,从各个方向展示别墅的价值和造型细节。我相信喜欢中式别墅的朋友应该能够感受到这座新的三层中式别墅的价值。屋顶、屋檐和柱子是中国别墅的细节,与窗户很协调。整体看起来大气,但一点也不夸张。新中式别墅的“新奇”主要体现在窗户上。现代玻璃质感将别墅的整体气质提升到一个更高的层次。
看看别墅的规划,也就是别墅的空间规划和设计。入口屏幕严格控制别墅的隐私,这与欧洲别墅不同。室内电梯的设置增强了别墅内的豪华感,方便老人和儿童上下楼梯。再加上娱乐室的设置,在家关十天半也不会无聊。
转载请注明出自轩鼎别墅设计="://lemeizhai.com" target="_self">://www.lemeizhai.com