在江西="://lemeizhai.com" target="_self">农村修建的欧式别墅,宽11-12米,两栋都很漂亮
在江西农村修建的欧式别墅,宽11-12米,两栋都很漂亮。 自己的家乡,不论好坏,别人都不许说那样的话,大家有这样的体验吗? 江西省虽不像北上广深那么繁华,但也是一个大省,有美丽的地貌景观和可爱的朴素的人,下面两个面宽在11-12米之间,建在江西农村的欧式别墅里,这两个别墅很漂亮。
户型11.989.98米,框架建筑,一扇落地窗,外观采用真石漆和浮雕装饰,屋顶配红瓦,机身成本30-35万左右。




平面图:一楼设有一间双室一厨一卫,结账台棋牌大厅一侧出入方便,客厅选择了空设计,二楼设有三间卧室和一个书房,室外设有一个小阳台,三楼设有三间卧室和一个书房,室外设有结账台露台。
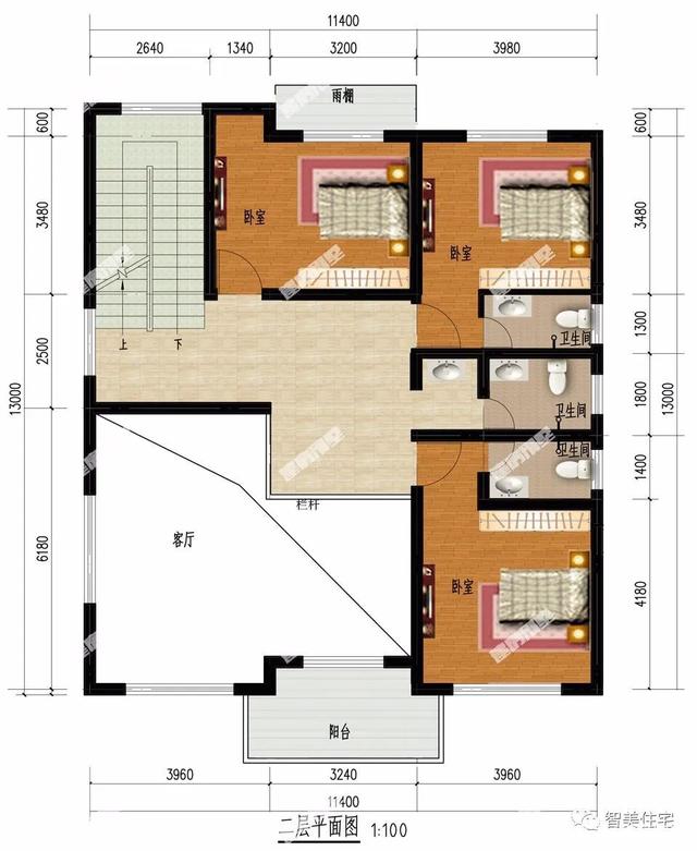
户型11.413米,简欧风格非常大气,落地有一扇大窗户,主体以砖瓦结构形式建造,外墙装饰使用红色小瓷砖,浅米色真石漆和一些构件等,屋顶用蓝瓦装饰。




平面图:南北通透,具有宽敞的客厅和挑天的茶厅,主要在室内设有独卫,二楼设有三间卧室,其中两间卧室设有独卫,三楼设有三间卧室和小书房,室外设有结账台露台。
客厅里选了两座空荡荡的别墅,这种风格的别墅在农村很流行。
转载请注明出自轩鼎别墅设计="://lemeizhai.com" target="_self">://www.lemeizhai.com