="://lemeizhai.com" target="_self">三层现代简约别墅,外墙颜色双层,你认为建在农村吗?
现在,欧美风在农村的自建房领域广泛流行,而现代风格的别墅作为清流静静地来到,渐渐为大家所喜爱。 特别是90多岁的后生子所追求的非常简单保守,现代风格的别墅也在增加。
今天带来的这幢保守的三层别墅很现代。

别墅的外部装饰立面图采用米色的杂色仿造涂膜剂,灰瓷砖组合,3层采用白灰的仿造涂膜剂,蓝褐色的斜面组合。

这座别墅造型独特,正门在二楼,一楼做了停车库。 这种造型在农村比较少见。
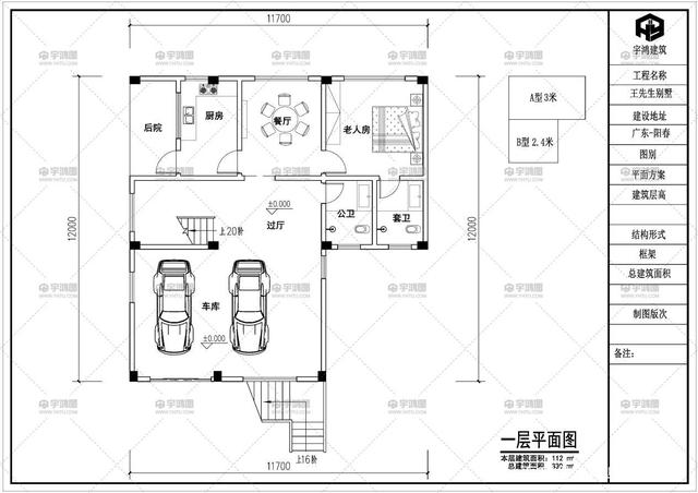
别墅的开放式房间为11.7米,进深为12米,占地面积为112平面,建筑结构形式为砖混结构。 主机的成本是25万左右。
附上平面设定修订图纸:

一楼有打开卷轴男同性恋制作的停车库,后面有楼梯间,有厨房、餐厅,还有独立护卫的老人房间。

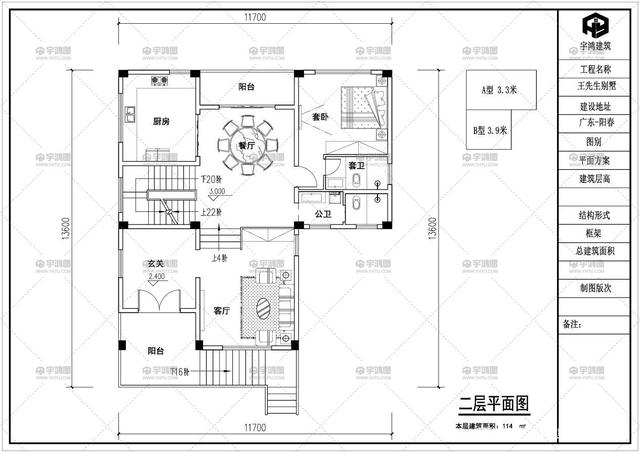
外面的楼梯直接登上二楼的阳台,从大门进入就是大门,右侧是客厅,然后上面的四楼是楼梯间和餐厅,厨房设定在餐厅的左侧,右侧是带护卫的卧室。
三楼从楼梯间来到结账台大厅,然后是三个独立的带防护的卧室,其中一个是带兜帽的房间。 结账台厅的正面是露台,空闲的时候可以沐浴阳光,聊天,睡午觉。
你觉得这样设计的现代风格简单的别墅怎么样?
转载请注明出自轩鼎别墅设计="://lemeizhai.com" target="_self">://www.lemeizhai.com