多窗口设计的小="://lemeizhai.com" target="_self">2层欧式别墅,透光性好,喜欢吗?


瑞士建筑师凯乐说:“真正的别墅应该融入了自然环境,需要在自然环境中寻找发现,而不是个性化的宣传。”
今天小编给大家带来的是一座小的两层的欧式别墅。

整体外观设计线条流畅,层次清晰,建筑立面图采用米色真石漆,物美价廉。
二楼设计了小露台,露台周围的护栏设计也很有特色。 一般别墅的设计有晒太阳和喝茶的摊位。
别墅坡顶采用蓝灰色琉璃瓦,色调组合和谐。 斜坡式的坡顶,即使下雨天也没有积水的问题,这样的别墅,可以舒适安心地居住。


这座别墅占地160平方米,开间12.04米,进深13.04米,整体建筑结构形式为炼瓦混合,墙体可以起到保温的作用。 主机的成本是20-25万美元。
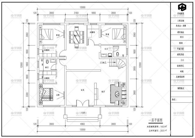
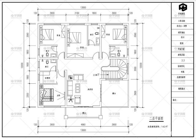
顺便附上平面设定修订图纸
一楼从大门进入大门,客厅修订在右侧,三间卧室都有独立的衣帽间,主卧室增加了独立的护卫。 餐厅设计在两侧之间,后门也开了。
二楼修订了四间卧室,各有独立的护栏,主卧铺增加了衣帽间。 起居室适合晚上坐在一起聊天、看电视。 外面是大面积露台,适合种植绿色,沐浴阳光。
这么小的两层别墅,建在农村,会让村里人羡慕的。
转载请注明出自轩鼎别墅设计="://lemeizhai.com" target="_self">://www.lemeizhai.com