="://lemeizhai.com" target="_self">豪华大气的中国式合院,一定要在村子里盖定径套,人生是圆满的


现在农村的自营住宅风格丰富,各自的设计风格具有不同的特征,一些人特别爱老虎油中国式的传统文化。 因为总是被它的含蓄美深深地吸引着。
中国式住宅一直强调“人与自然的和谐关系”,这是最传统最精华的地方,现在越来越得到高端职业者的认可和接受。 中国式别墅内收敛灵秀的传统文化内涵赋予了独特的市场定位。
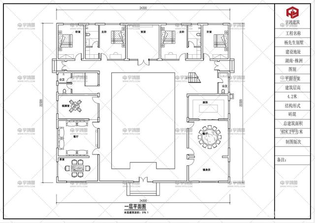
今天给大家带来的这幢豪华的中国式别墅,占地378.1平,开间24.3米,进深22.32米,建筑结构形式是砖混结构。

别墅的整体外观采用白墙灰瓦的格调、实木窗、护栏以及屋檐装饰,处处彰显中式风格气息,从外面看整体,有一种合院的感觉。
别墅的设计要点在于院内宽敞的庭院,晚上可以散步,白天可以沐浴阳光。 二楼房前有一条长长的走廊,直接走到摊位,左边放盘子,下围棋,右边放茶具,可以一起讨论茶艺。
这样的别墅建在乡下,真是人人羡慕的生活。
附上平面设定修订图纸:


一楼从大门进去是一个大院子,进去,向着堂堂。 堂堂并排的是四间卧室,走廊左右开着两扇侧门。 楼梯间设计在右侧,包括厨房、餐厅和健身房。 左边是公卫、棋牌室、客厅和茶室。
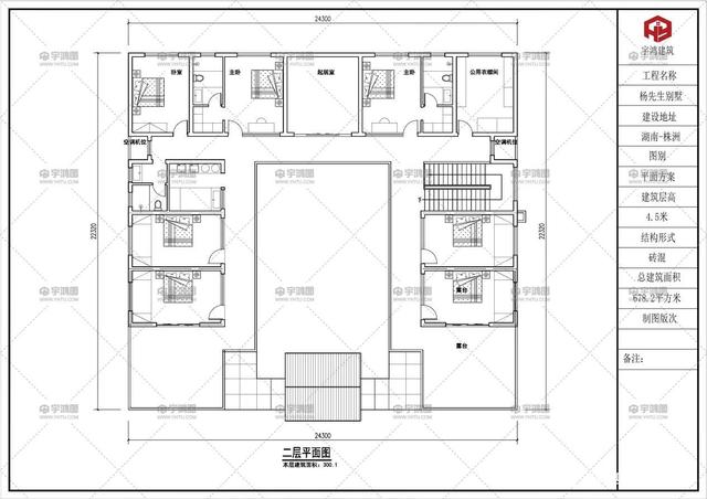
二楼修订了七间卧室和一个公共食品间。 两个主卧铺有独立的防护罩和护罩之间,堂堂上有客厅。 左右两侧的前方有大面积的露台。
像这样设计的中国式别墅,真的给人古香古色的感觉,你们觉得怎么样
转载请注明出自轩鼎别墅设计="://lemeizhai.com" target="_self">://www.lemeizhai.com