农村宅基地宽12米,深9.5米。如何做="://lemeizhai.com" target="_self">别墅设计它?
背景收到了粉丝们的提问:如何设计一个宽12米、深9.5米的农村家园?它需要两个房间,两个大厅,一个厨房和一个浴室在一楼,一个房间和厕所在二楼。这个要求很简单,没有太多的闲言碎语,直接安排图纸。
第一套:清空客厅阳光房顶层的大露台和“极简主义”现代风格的房子
占地面积:12.1米* 9米
占地面积:114
建筑面积:239平方米
总高度:8.1米
建筑条件:5个房间,3个大厅,1个厨房,2个浴室,1个多功能厅,1个日光室,2个阳台和1个露台



该别墅的配色以黑白为主,采用艺术线条设计,充分发挥了极简主义。平顶落地窗增强了设计美感,采光效果好,降低了施工难度。
在户型设计上,完全满足主体业主的需求。一楼有两个房间和两个大厅。挑选客厅很大气,招待客人时有一排排的脸。两层,三房一厅,双阳台加阳光房,有很好的居住体验。而且还设置了洗衣房,非常方便。
第二套:对称设计的双客厅和多卧室,二楼优雅的法国别墅
建筑面积:12米* 10.5米
占地面积:119.8
建筑面积:232.9
建筑情况:共有6个房间和1个阳台
外观采用对称设计,没有太多复杂的装饰,采用简单的线条设计和圆柱造型,将法国建筑的优雅之美展现到极致。



让我们谈谈公寓设计。门口有一个缓冲平台,客厅和餐厅从北向南贯穿,通透性很好。两间朝南的卧室也是对称分布的,其中一间可以作为老人的房间。两层,四室一厅,布局紧凑合理。
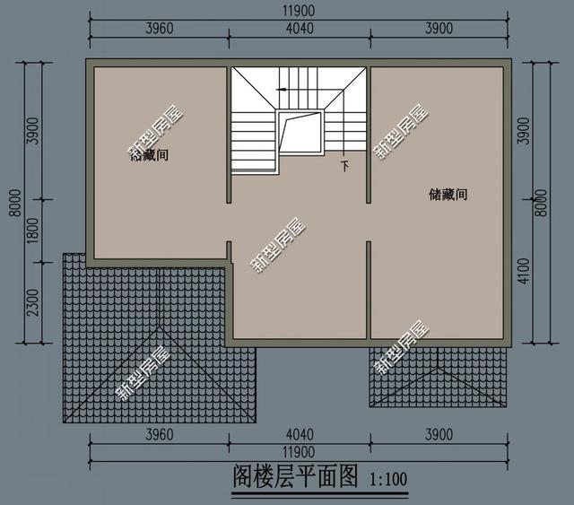
第三套:双入口阁楼,时尚的欧洲别墅
占地面积:11.9米* 9.5米
占地面积:118.24
建筑面积:226.32
总高度:9.3米
建筑情况:有5个房间,2个浴室,1个阳台和3个储藏室
蓝色的屋顶与浅色的墙壁相搭配,给人一种清新的感觉。精致的门斗设计丰富了立面,提高了外观价值。




让我们看看公寓设计。有一个入口平台,鞋柜藏在门后。这个设计非常巧妙。客厅和餐厅很宽敞,厨房面积很大,还有一个单独的入口门。一楼的两间卧室符合主题的需要。二楼,三个房间和一个大厅有储藏室,阁楼可以储存和隔热,这是相当好的。
这三个单元非常符合主体所有者的需求。如果你喜欢,请赞美它。注意这个数字,1300套农村自建房屋的图纸正等着你。
转载请注明出自轩鼎别墅设计="://lemeizhai.com" target="_self">://www.lemeizhai.com