一栋带有多个窗户的="://lemeizhai.com" target="_self">两层欧式小别墅具有良好的透光性能。你喜欢吗?
瑞士建筑师乐凯说:“真正的别墅应该融入自然环境,而你需要在自然环境中寻找,而不是张扬个性。”

今天,边肖为你带来了一座两层楼的欧洲小别墅。


整体设计线条流畅清晰,建筑立面采用米色真石漆,物美价廉。
二楼设计了一个小露台,露台周围的护栏设计也很有特色。一般的别墅设计会留出一个露台用于日光浴和喝茶。
别墅顶部使用蓝灰色琉璃瓦,在颜色搭配上相互补充。雨天坡顶不会积水。这样的别墅既舒适又安全。
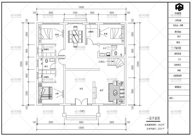
这座别墅占地160平方米,宽12.04米,深13.04米。整个建筑结构为砖混结构,墙体保温。主要费用在20万到25万英镑之间。
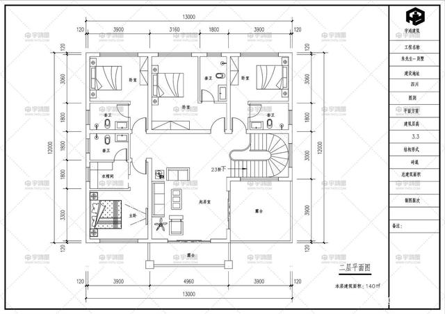
顺便附上平面设计图纸:

门厅的入口是入口,客厅设计在右侧,三间卧室都有独立的衣帽间,主卧室有独立的衣柜。餐厅设计在两边之间,有一个后门。

二楼有四间卧室,每间都有自己的警卫,主卧还增加了一间衣帽间。客厅适合晚上坐在一起聊天看电视。外面是一个大露台,适合种植绿色植物和晒太阳。
这样一座建在农村的两层小别墅,将会受到村民们的羡慕。
转载请注明出自轩鼎别墅设计="://lemeizhai.com" target="_self">://www.lemeizhai.com