90平方米的="://lemeizhai.com" target="_self">小面积乡村别墅,简单低调,造价20万元。你想要吗?
别墅生活,生活梦想的家园。随着生活质量的迅速提高,普通的商品房已经不能满足有品位的成功人士的需求。追求更高贵的生活方式和生活品质,逃离喧嚣的城市喧嚣,回归简单自然的别墅生活,已经成为城市精英们的共识。


今天,我们为您带来一套90平米的乡村别墅。

别墅的正面是白色的石头般的油漆,与蓝灰色的坡顶相匹配,这样在雨天就不会积水。别墅的亮点在于其整体设计介于欧洲风格和现代风格之间。多窗设计使整个别墅具有良好的采光和透气性。
二楼的阳台是玻璃护栏,非常现代,极简主义风格是很多年轻人的最爱。

别墅宽11米,深10.1米,面积90.7平方米。别墅的结构是砖混结构,主要造价在15万到19万英镑之间。
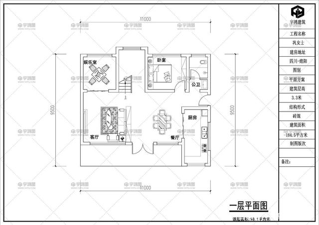
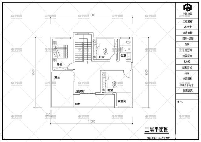
顺便附上平面设计图纸:
在一楼,入口是大厅,客厅在左边,餐厅和厨房在右边。后面是娱乐室,然后是楼梯间,最右边是卧室和公共厕所。
在二楼,从楼梯井,有一个家庭礼堂,后面是三间卧室。主卧室有一个衣帽间。
这样的小别墅不到100平方米,成本相当可观。你想要一个吗?
转载请注明出自轩鼎别墅设计="://lemeizhai.com" target="_self">://www.lemeizhai.com