="://lemeizhai.com" target="_self">三层简单的欧式别墅,坡顶没有积水,布局经典,质量好,价格低!
简单的欧洲风格是一种简化的欧洲风格。这也是目前最流行的住宅别墅风格。简欧式风格更加实用和多样化。
今天带给你的三层别墅是简单的欧式风格。


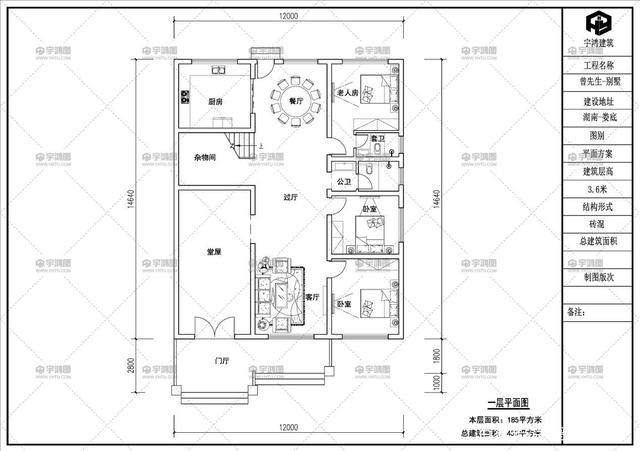
别墅宽12米,深17.44米,建筑面积185平方米,砖混结构,高3.6米,为普通高度。
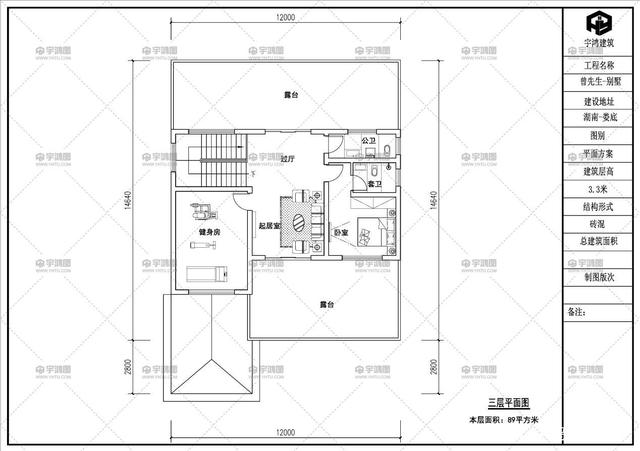
别墅立面采用米色真彩,配以砖红色坡顶、注塑护栏、罗马柱、雕花等元素,尽显别墅风格。这座别墅的亮点是前后都有很大的露台,可以在自己的屋顶上做户外运动,看起来很不错。
顺便附上平面布置设计图:

一楼的设计是门厅在最左边,主入口是主房间,中间是客厅,最右边是两间卧室。大厅后面是厨房和餐厅,杂物间设计在楼梯间,节省空间。还有一个有独立警卫的老人房间。

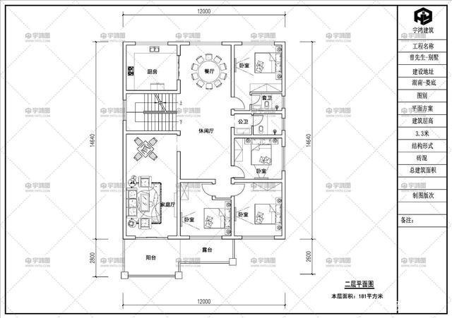
二楼和一楼的总体布局没有本质上的区别,除了主房间的顶部被设计成一个家庭礼堂。客厅的上部被设计成卧室。最右边卧室的布局是一样的。

三楼前后有一个大露台,设计有健身房、客厅和带独立浴室的卧室。
事实上,整套别墅的平面设计布局不是很有特色,但生活往往需要平淡。这种建在农村的别墅也是一种令人羡慕的景观。
转载请注明出自轩鼎别墅设计="://lemeizhai.com" target="_self">://www.lemeizhai.com