超豪华的组合="://lemeizhai.com" target="_self">农村自建别墅,前后楼充分利用它。如果你有钱,你会建造它吗?

别墅市场初期,欧式风格最多,但风格表现粗糙。随着别墅市场的成熟,欧洲别墅的风格设计更加多样化,尽量避免粗糙的风格轮廓,某个国家和地区的风格更加精致,别墅的建筑造型更加生动。
你眼前看到的别墅属于普通的欧洲风格。

业主将别墅设计成甲、乙两栋建筑,以客厅、茶室和卧室为主体建筑,厨房和餐厅为主体建筑。甲和乙通过走廊相连,这是一种独特的设计。
整个别墅占地面积很大,主人家庭还设计了一个院子,可以在闲暇时用来停车、散步和户外烧烤。

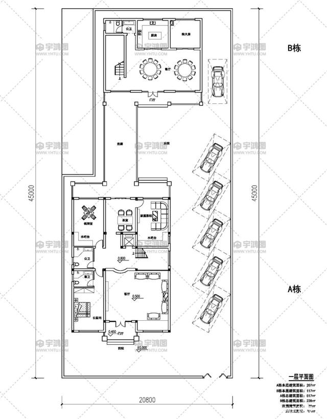
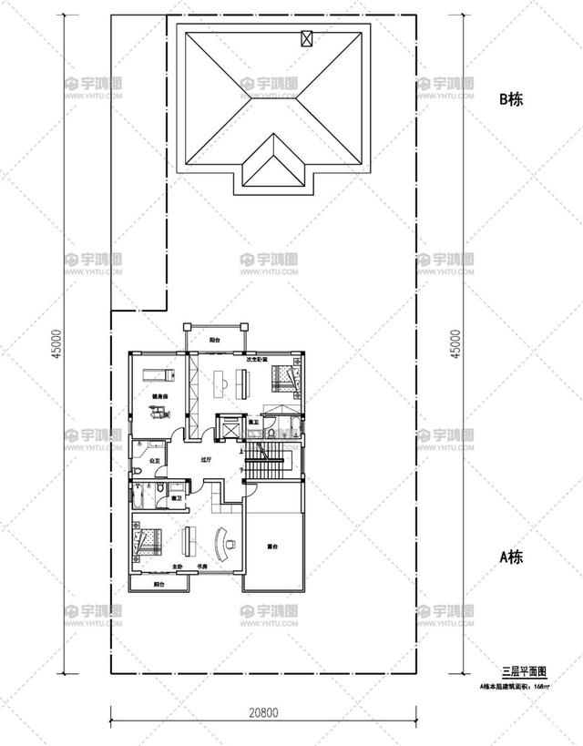
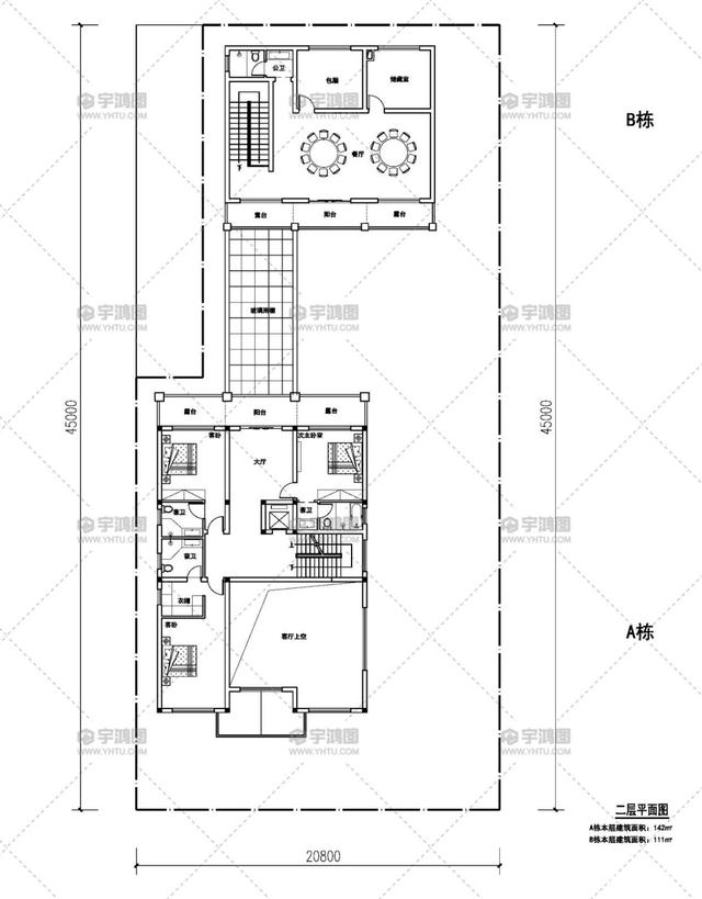
整个别墅宽20.8米,深45米,面积363平方米。
顺便附上平面设计图纸:

在一号楼的一楼,门厅是复式客厅,然后是楼梯间,然后在左边是带独立浴室的老年房间,接着是棋牌室,然后是茶馆和家庭影院。走廊过去是B楼,门厅是餐厅,然后是厨房和柴火室,公共警卫在楼梯间旁边。


在一号楼的二楼,从楼梯井开始,有一个大厅,然后有三个卧室和独立的浴室,主卧室还增加了一个衣帽间。它的后面是阳台和露台。玻璃天篷连接到B楼,有一个餐厅,一个盒子和一个储藏室。
在a楼的三楼有两个主卧室和一个健身房。两个主卧室都有独立的书房、衣帽间和独立的浴室。右边还有一个大露台,这是所有别墅的基本标准。
你喜欢这样一个有庭院和个性的别墅吗?
转载请注明出自轩鼎别墅设计="://lemeizhai.com" target="_self">://www.lemeizhai.com