独一无二的="://lemeizhai.com" target="_self">农村两层小别墅设计占地面积超过100平方米,给您一种奢华的氛围!
如今,很多人会找专业团队根据他们的家园大小和自己的想法来设计别墅。因此,美丽的别墅和小建筑在许多农村地区随处可见。

如今,这座由边肖带来的别墅外观相当独特,是由设计师根据客户的个性化需求设计的。

别墅内部由米色真石漆制成,带有平屋顶设计。多边形设计使别墅的线条更加柔和。二楼有两个小露台,虽然只有两层,所以设计看起来很独特。
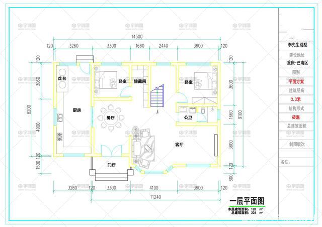
这座别墅宽11.24米,深9.1米,面积128平方米。
顺便附上平面设计布置图:

在一楼,门厅的入口是餐厅。厨房在餐厅旁边,设计在左边。客厅设计在右边,后面是公共警卫,还设计了两间卧室。

二楼设计有四间卧室,客厅的上部设计为主卧室,有衣帽间和独立浴室。厨房的顶部已经变成了一个露台,这座两层楼的小别墅建得很好,住起来很舒服。
如果你有一个家园,你会愿意建造这样的别墅吗?
转载请注明出自轩鼎别墅设计="://lemeizhai.com" target="_self">://www.lemeizhai.com