别墅设计:="://lemeizhai.com" target="_self">两层中式别墅,简单大方,适合新农村,这种风格很亲切
在做了这么多年的设计后,大多数朋友的第一句话是:“陈红,帮我设计一个简单大方的房子。”经过总结,我也得出结论,我的大多数朋友都不喜欢花哨的款式,简单大方的款式更受大众欢迎。
因此,今天边肖特意整理了一套简化的两层中式别墅案例,希望大家喜欢。
建筑信息
海湾:17.9米
深度:15米
建筑面积:302平方米
建筑结构:砖和混凝土
参考价格:900一套




整个建筑是中式的。白色的墙壁和黑色的瓷砖看起来清新优雅。建筑大门设置在中心,宽度超过17米,非常大气。外墙漆是白色的真石漆,屋顶是蓝色的小瓷砖。形状是方形的,简单而有吸引力。
考虑到照明问题,我们在北屋顶上有一个玻璃屋顶,可以用作阳光直射的日光室。
背面有一个小阳台,是休闲和晾晒衣物的好选择。
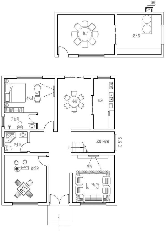
让我们看看平面布局效果:




最后,看看平面布局效果

首层布局:建筑入口位置位于建筑中心,以此为中轴,左右对称。从大门进入,左手边有一个娱乐室,右手边有一个客厅。过去,左边是浴室,右边是楼梯,楼梯下面的空间被合理地用作储藏室。过去,有一个老年房间,左边有一个独立的浴室,右边有一个厨房餐厅。

除了主体部分的厨房和餐厅外,业主还要求在建筑的背面独立设计一个柴火厨房,因此在农村地区有必要有两个厨房。
二楼布局:二楼有三间卧室和一间书房。
转载请注明出自轩鼎别墅设计="://lemeizhai.com" target="_self">://www.lemeizhai.com