="://lemeizhai.com" target="_self">农村自建红砖别墅,宽11米,有车库。三个房间和一个大厅非常舒适,并且外观很好

在我们的生活中,许多人可能会发现很难拥有自己的房子。说到房子,也就是我们居住和休息的地方,许多人把他们的一生都奉献给了这个地方。但事实上,对于绝大多数农村朋友来说,只要你在自己的家园上盖一栋房子,买房并不难。此外,许多农村朋友不仅在农村老家建别墅,还在城市买商品房。因为在农村建房子的成本不高,所以也可以设计得很漂亮。农村老家的房子减轻了人们的忧虑,给了他们更多的精神去挣钱买城市的房子。

今天,我们来看一个农村自建的三层别墅,它是用红砖建成的。你看,它在下面,让人感觉很舒服。从屋顶到车库再到外墙,一切都很精致,外墙的配色给人一种宁静和大气的感觉,非常宜人。如果你在家里建这样的房子,我相信你会幸福的。



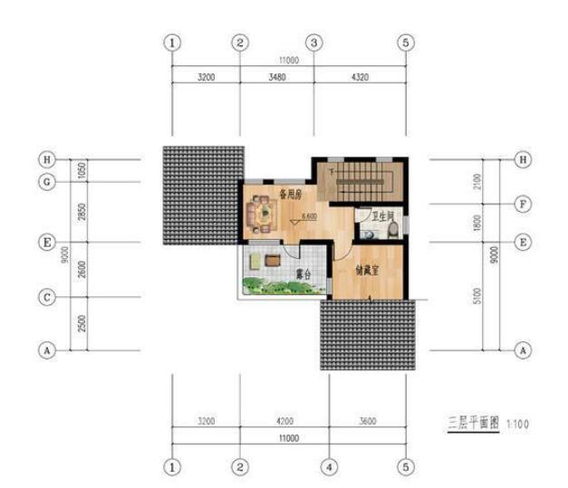
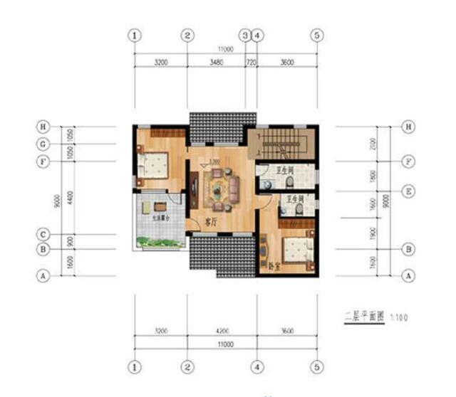
从平面图可以看出,房子的宽度是11米,深度只有9米。它占地面积小,所以盖房子的费用不会很大。然而,这里有车库和阳光充足的老人之家,还有厨房和餐厅,非常实用。
二楼和三楼主要是两间卧室和阳光露台,以及备用房间和储藏室。一楼有老人房间,二楼有成人和儿童。楼上有空房间,足够住了。想到一家人可以住在这样的别墅里,心里也很踏实。
今天的乡村别墅在这里与大家共享。这真的是“家有土地,心里却没有恐慌。”
转载请注明出自轩鼎别墅设计="://lemeizhai.com" target="_self">://www.lemeizhai.com