="://lemeizhai.com" target="_self">中式别墅设计,宽10.6米,深12.2米
湖北黄冈中式别墅
尺寸:宽10.6米,深12.2米,建筑面积234.0
项目概述
总布置图
基本条件:
东:邻里住宅
西方:邻里住宅
南面:乡村道路
北部:乡村道路
项目介绍:
该项目位于湖北省黄冈市。早期,业主表示喜欢中式别墅,希望留下足够的空间作为休闲娱乐的庭院。经过设计师和业主多次沟通,建筑的平面布局和立面造型逐步确立。根据基地的基本情况和业主的需求和偏好,设计师确定项目形式为一栋两层的新中式南北向住宅。
平面布置


公寓布局概述:
2层/5个房间,1个大厅,2个浴室,1个厨房,1个房间,1个储藏室,1个棋牌室和1个露台
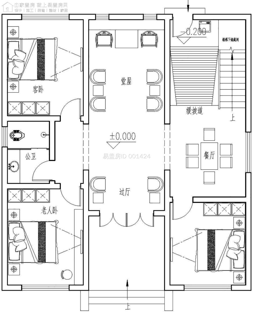
首层平面图


在平面布局上,设计师采用了九宫格的设计方法。在主楼中,入口位于南侧,通过平台和大厅可以到达主房间。主房西侧为日常生活空间,南侧设有老人房,方便老人的日常生活。北侧的卧室主要用作客房,以满足酒店的需求。建筑东侧的空间设有餐厅和卧室,后院可通过坡道进入。
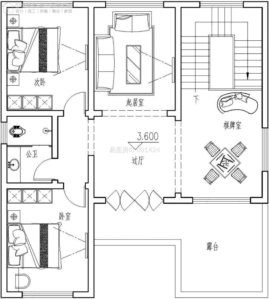
二层平面图
二楼是业主的日常生活用房。西边有两间卧室,南边是主卧室,北边是第二间卧室。客厅位于建筑的中部,从阳台向外延伸至南面,满足了日常生活的需要,丰富了建筑的功能。东侧有一个棋牌室,丰富了二楼作为室内活动空间的功能,满足了待客的需求,大大提高了居住的舒适度。
本项目采用传统住宅的布局形式,设计前院和后院以满足业主的日常需求。在建筑形式上,设计师采用了中式风格。以白色墙壁为底,灰色为画面,整体配色相当优雅。





设计师还处理了建筑的颜色和细节。外墙为浅色真石漆,仿青砖,屋顶为深灰色瓷砖。各种材料的碰撞使建筑的立面更加丰富,也增加了建筑的层次感。
建筑整体布局规整,白墙、青砖、灰瓦,简单自然的材料,营造出精致美观的立面效果,成熟的设计手法,带人回归与回归。



主楼的南边有一个大院子。设计师采用了现代技术来装饰庭院,并在周围的风景中装饰建筑,从而将自然景观带进建筑的视野,提高居住体验的舒适性。庭院效果图
根据业主的要求和喜好,结合场地的位置和大小,设计师进行了灵活的调整,在庭院中设置亭子和石凳,在后院设置假山,不仅增加了庭院的景观,也方便了居民闲暇时的休闲娱乐。

从不同的角度品味整栋建筑,我们可以从美丽大气的建筑中看到主人低调善良的性格。面对过剩的根据地,主人选择了谦虚的态度来面对环境。
转载请注明出自轩鼎别墅设计="://lemeizhai.com" target="_self">://www.lemeizhai.com