="://lemeizhai.com" target="_self">豪华的中式庭院别墅带着大面积的花园,你要住在中式庭院别墅里,注意建筑和自然风景的融合,在风景中有我,在风景中有我的感觉。在这种情况下,你似乎远离了所有的城市喧嚣,你完全融入了大自然,呼吸着新鲜的空气,乐观地看待山、水和风景。

下面的三层中式庭院别墅是荒凉的,简单明了,在物质环境中蕴含着丰富的精神世界。让我们看看。
别墅外观采用中国风格的白墙灰瓦的独特风格,阳台上有实木窗户和栏杆,给人一种古色古香的感觉。当你走近时,你会觉得回归已经来到了古老的中国庭院。


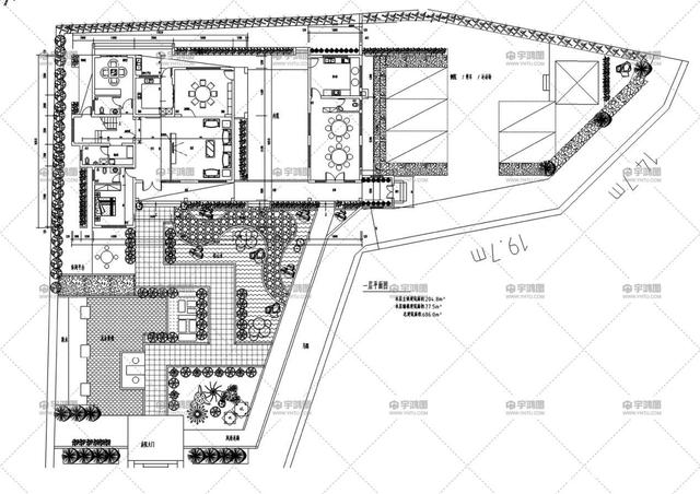
这座别墅宽28.26米,深16.84米,面积204.8平方米。这座别墅的结构是砖和混凝土的。一楼还有一个很大的外院,你可以在那里散步、停车和做运动。还做了大面积的绿化,真正做到了家在花园里。
附上图形设计图纸:



在一楼的左侧,一扇大门在上面的台阶上被打开,一个客厅,厨房和餐厅,一个有独立浴室的卧室和一个棋牌室被设计出来。中间是内院,右边是柴火房和餐厅。
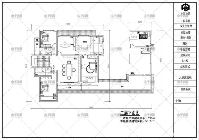
二楼从楼梯面向茶馆,前后各有一间卧室,茶馆旁边有一间书房,左边有一间带衣帽间和独立浴室的主卧室。室外走廊连接到右侧的健身房和视频室。
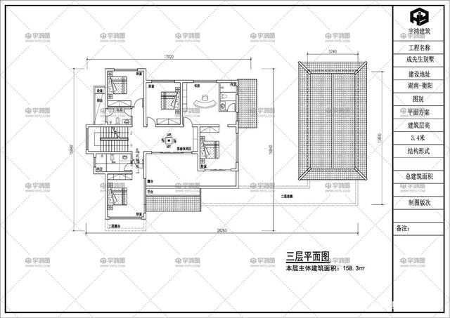
三楼有四间卧室。主卧室有一个书房和一个独立的浴室。楼梯间是茶馆休闲区,外面有一个大露台。
以这种方式设计的中式庭院不仅具有强烈的古代风格感,而且建在山川边。它真的不花任何钱。你怎么想呢?在这样的房子里养老?
转载请注明出自轩鼎别墅设计="://lemeizhai.com" target="_self">://www.lemeizhai.com