95平方米的="://lemeizhai.com" target="_self">农村自建住宅,价格低廉,功能齐全。你想要吗?

欧洲文化艺术丰富,设计开放创新,外观高贵,一直受到人们的喜爱和追求。简的欧式风格,从简单到复杂,从整体到局部,雕刻精美,用鲜花和黄金装饰,给人一丝不苟的印象。一方面,它保留了材料和色彩的伟大风格,仍然能强烈地感受到传统的历史痕迹和丰富的文化遗产。同时,它摒弃了复杂的纹理和装饰,简化了线条。

今天,这座简单的欧式三层房子宽10米,深9米,总面积只有95平方米。这是一所农村自建的小房子。
建筑立面和外墙采用米色真石漆,配以蓝灰色坡顶,不用担心雨天积水。亮点在于它的外观和形状,整体对称,所以简单的设计让人感觉舒适。
附件是内部图形设计图纸:



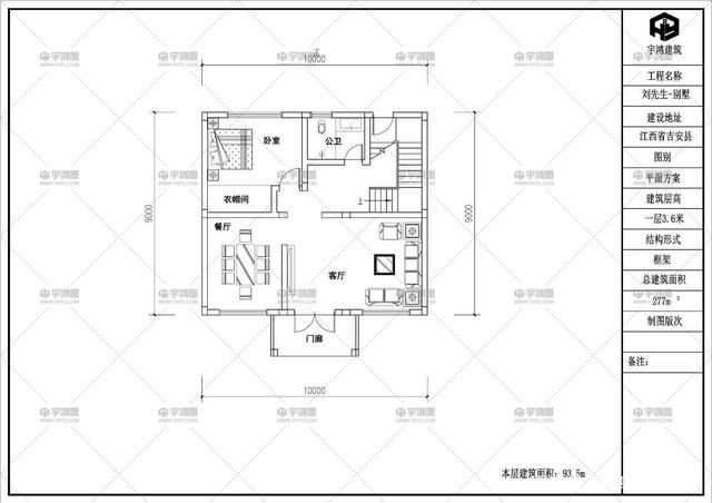
一楼是从门廊开始的客厅,餐厅设计在左边,后面是带衣帽间的卧室,然后公共卫生和楼梯间一起设计。
二楼的布局与一楼相似,公共警卫在楼梯间旁边,卧室在餐厅上方,客厅外面有一个小阳台。
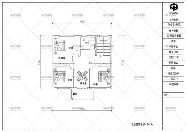
三楼的设计不同于一楼和二楼。客厅的上部被设计成卧室和娱乐室,外面有一个露台。
这所房子的整个面积都很小,主人独自在外面建了一个厨房。在农村,有一所房子有足够的卧室,这是不昂贵的,适合大多数人的生活条件。
转载请注明出自轩鼎别墅设计="://lemeizhai.com" target="_self">://www.lemeizhai.com