140平方米的="://lemeizhai.com" target="_self">农村简易住宅设计,看看它,告诉周围的人
140平方米的农村简易住宅设计,看看它,告诉周围的人

如今,在新农村地区,自建房屋提倡“简单设计”,而在农村地区建造房屋不仅仅是能够容纳人那么简单。舒适和安全的居住环境必须是美丽和绿色的,所以现在新农村自建住房正在发展成为城市化的社区。农民一生都在努力工作,他们应该享受城里人居住的舒适的房子。现在小安告诉你一个简单的农村别墅140平方米的房子。如果你看到它,你可以很快转发给你周围的人。


前阳台和罗马柱的结合不仅使整个别墅美观,而且强调了整个建筑的统一性。文脉化石的层次感和深蓝色琉璃瓦的斜屋顶使结构清晰,别墅有更多的窗户,开阔了视野,使别墅更加实用。
层数:二层结构:砖混结构主要造价:15万-20万开间:13.6米深:10.2米建筑面积:145平方米建筑面积:265平方米
让我们看看室内布局。一楼的入口是门厅,客厅合二为一,大大增加了室内空间。一楼有两间卧室,分布在房间的西角,既保证了家庭成员的私人空间,又满足了家庭的生活需求。公共厕所位于两间卧室的出口处,方便日常生活。不用的杂物可以更好的放在储藏室里,这样更便于查找和整理。
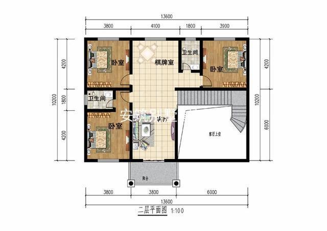
二楼有三间卧室,包括卫生间、棋牌室、客厅和露台。一居室有私人卫生间,卫生间位于同一位置,避免了管道安装的麻烦,节省了时间和金钱。
转载请注明出自轩鼎别墅设计="://lemeizhai.com" target="_self">://www.lemeizhai.com