140平方米,15x9米,带阳光室的别墅,实物图和设计图,="://lemeizhai.com" target="_self">新农村住宅设计真的很漂亮
随着农村生活水平的提高,人们对住房的标准化和互联网的普及程度越来越高。如今,农村自建房屋的样式多种多样。为了拥有一栋漂亮舒适的高层住宅,无论是富人还是穷人,建筑商都会邀请设计师帮助规划自己的房子,或者在网上搜索符合自己需求的房屋设计图。毕竟,在农村建房子是生活中的一件大事,所以有必要在设计费上花些钱。

今天,边肖分享了一幅真实的房屋建筑地图,并得到了顾客的反馈,结果非常好。
公寓类型基本信息
层数:两层结构:框架结构主要造价:25-28万
宽度:15m深度:9m建筑面积:139m2总建筑面积:268m2
覆盖物理图:

浅色外墙清新温暖。房子的右边有一个车库,是一个小亭子。它也可以被设置为日光室,在这里你可以泡一杯茶,拿本书,听音乐,深呼吸,贪婪地闻阳光。
渲染:
该公寓外形美观,框架结构,合理的空间设计,阳光温室设计,贴近自然生活,能陶冶情操。
平面图:


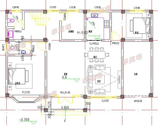
建筑的平面图
底层:车库、客厅、大堂、餐厅、厨房、卧室(带卫生间)、子卧室、杂物室和公共卫生间。
二楼平面图
二楼:主卧室(带浴室和阳台)、带内部保安的二级卧室、两间客房、公共浴室、客厅和日光温室。
转载请注明出自轩鼎别墅设计="://lemeizhai.com" target="_self">://www.lemeizhai.com