建筑图纸——新农村土豪偏爱的30米X50米="://lemeizhai.com" target="_self">两层别墅设计图

今天,建筑爱好者与大家分享新农村自建别墅中土豪偏爱的30米X50米两层别墅的设计图纸。在周末,他们会给你一些激烈的观点。虽然大多数人不想要这么大的土地,但从欣赏的角度来看是完全有可能的。另一点是,我们不能排除少数土豪是合格的,所以当你花钱的时候,你仍然可以做一些特别的事情。在过去,建筑爱好者们也分享了一些类似的农村土豪自建房屋的设计图,这些房屋有20米X20米和400平方米。

40 m X30 m基础两层带地下室的新农村土皇帝自建房屋设计图
土豪农村自建房屋20平方米20平方米400平方米。大厦两层空客厅住宅设计
农村土豪自己盖的房子20米X20米,两层楼,400平方米,所以今天我们就来看看前面
白天渲染


一楼平面图左侧的车库很容易停放四辆车,然后是保姆房和浴室,然后是一个封闭的厨房、一个开放式厨房、餐厅、客厅,后面是卧室,右侧是书房和客厅。
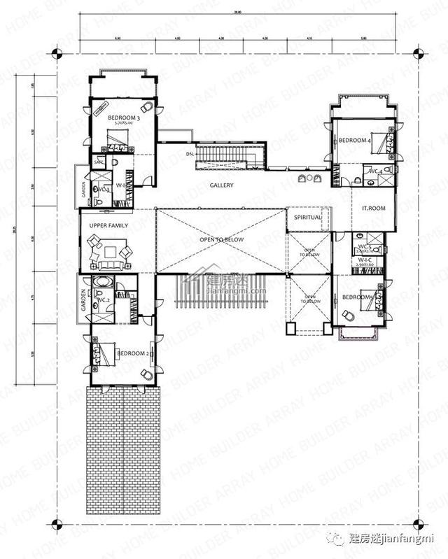
二楼的四间套房分布在四个角落
很霸道吗
在过去,建筑爱好者们也分享了一些类似的农村土豪自建房屋的设计图,这些房屋有20米X20米和400平方米。
40 m X30 m基础两层带地下室的新农村土皇帝自建房屋设计图
土豪农村自建房屋20平方米20平方米400平方米。大厦两层空客厅住宅设计
农村土豪建造的20米X20米两层400平方米豪华别墅设计图
由于结构相对简单,跨度不大,也可以用EPS模块搭建,也可以用砖混结构,看哪种局部方式更方便。
转载请注明出自轩鼎别墅设计="://lemeizhai.com" target="_self">://www.lemeizhai.com