="://lemeizhai.com" target="_self">农村自建三层别墅,6室2厅,活动室和茶室有高质量的生活!

农村自建三层别墅,6室2厅,活动室和茶室有高质量的生活!
如今,农村的生活和经济条件越来越好,所以我们可以看到,在许多农村地区有许多别墅,人们对此并不感到惊讶,但大多数农村人重视几个房间和大厅,以及它们的外观。事实上,我不能理解这个想法,因为大多数农村人都在其他地方努力工作,在大城市,他们可以在3个房间和1个大厅里卖300万。大概是因为这种潜意识,农村人想建更多的卧室。
别墅设计真的注重几个房间和大厅吗?事实上,小安认为农村自建别墅最重要的不是卧室和客厅,而是实用性。因为不是所有的农村基金会都这么大。事实上,只要小型别墅的设计合理,他们就可以住得很舒服。今天,我们将为您带来一座农村地区的三层别墅。


层数:三层结构:砖混主体造价:30-35万间:12m深:11m建筑面积:136m2建筑面积:424m2
这座别墅占地面积只有136平方米,但它的布局非常细致。首先,让我们看看这座别墅的外观。屋檐上的蓝色琉璃瓦与白色真石漆相连,色彩饱和,既不夸张,也不过分。
底层:主房间、客厅、卧室(带卫生间)、厨房、餐厅、卫生间和洗衣房



从一楼平面图中,我们可以看到别墅的一楼属于阳光面。除了客厅,几乎所有的卧室都有很好的照明。此外,对于在农村有很多亲戚朋友的业主来说,大圆桌餐厅的设计非常实用。厕所里的盥洗室是分开的,以保持房间干燥。
二楼:客厅(带阳台)、卧室(带浴室)、三间卧室、浴室和洗衣房
从二楼平面图可以明显看出,共有四间卧室和公共厕所,带阳台的客厅经过特殊设计,完全可以满足三口之家的生活需求。在这样的房子里与父母和孩子在一起是一幅温馨的画面。
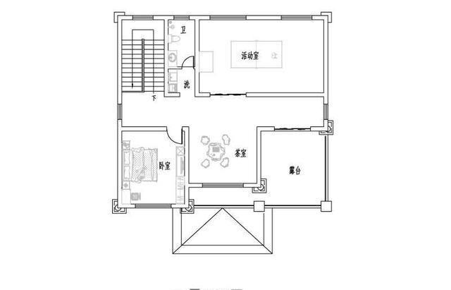
三楼:卧室、茶室、活动室、卫生间、洗衣房和露台
您可以看到一个3层布局。卧室没有一楼和二楼那么多,只设计了一间卧室,其余的是茶室、活动室、洗衣房等。可以看出,主人是一个非常热爱生活的人。
转载请注明出自轩鼎别墅设计="://lemeizhai.com" target="_self">://www.lemeizhai.com