8米X13米="://lemeizhai.com" target="_self">农村自建别墅不再是富人的专利,但你也可以拥有它们!

建筑不仅有其自身的实用价值,当人们开始追求建筑,向往高品质的生活时,建筑也有其意义。如今,别墅不再是富人的专属,别墅和豪宅的受欢迎程度越来越高,每个人都可以拥有它们。但即使是别墅,由于其客观造型、建筑质量和人为主观审美的差异,有美、有丑、有好有坏,也有地域差异,这是让人嫉妒的地方。为了更好地体现建筑之美,边肖推荐了一个农村自建别墅设计方案,这是一个经典的三层设计,与商品房和别墅设计完美结合,实用性强。
这座别墅主要是为三口之家建造的,既能满足生活又能满足副业。屋顶是红色仿瓷砖,四坡屋顶上的三层建筑非常经典。此外,别墅一层为棕色真石漆,二、三层为米色真石漆,其中腰线、窗帘线等线条采用银灰色油漆,增强整体质感。别墅偶尔用黄色图案装饰,给家庭带来祝福,体现家庭的财富。
建筑细节:
占地面积:8X13m;
占地面积:120平方米;
建筑面积:251.57平方米;
建筑层数:三层;
建筑高度:14.2米;
建筑模式:装配式建筑。




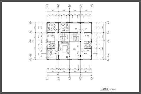
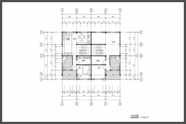
一楼有厨房、餐厅和大厅,一楼主要用于日常沟通、接待和日常工作,方便联系。二楼和三楼主要是向内,这是家庭的私人空间。主卧室有套房、客厅、书房和浴室,还有两间第二卧室。三楼主要作为家庭活动空间和客房预留,活动室为休闲活动提供足够的空间;客房为亲朋好友提供了一个休息的地方;储藏室可以存放杂物或一些商业材料;卫生间配有洗衣机和浴室。这样的别墅,人们怎么能不嫉妒呢?如果你想分享图纸,你可以在下面留言或者关注我们~
转载请注明出自轩鼎别墅设计="://lemeizhai.com" target="_self">://www.lemeizhai.com