2020年="://lemeizhai.com" target="_self">新农村别墅设计图占地160平方米,造价40万元
我想推荐一栋面积约160平方米的豪华三层别墅。它的外观是按照欧洲古典风格设计的。它的正面以棕色大理石为基础,配以黄褐色和乳白色的仿砖墙,部分与欧洲古典罗马造型的柱子和水瓶栅栏相匹配。它的颜色和谐,形状大气。深蓝色的坡屋顶为别墅增添了优雅而稳定的效果,每一个细节都设计得天衣无缝,堪称经典杰作。
别墅宽度:13.4米
别墅深度:12米
占地面积:160.8米
总建筑面积:448.36平方米
建筑层数:地上3层
建筑高度:11.9米(1层4.2米,2层3.5米,3层3.5米)
结构形式:框架结构
鸟瞰图

该方案不仅注重别墅的外观,而且不遗余力地创造舒适的居住空间。每层都有开放式阳台设计,第三层有一个大露台,为家庭提供户外娱乐和休闲空间。
背景渲染


别墅的背面仍然遵循积极的整体风格,但它更简洁,窗户面积很大,每个房间的照明都很好。
建筑的平面图



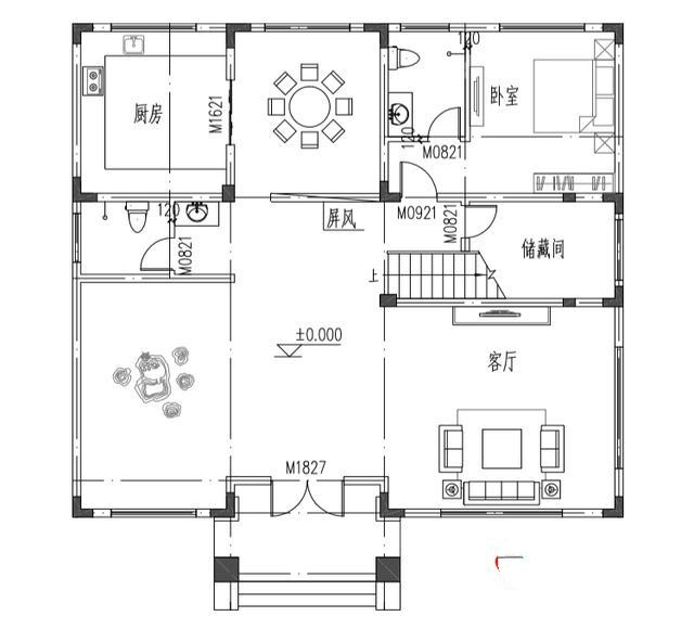
一楼强调空间的宽敞和开放。它位于主房间内,通过屏风与餐厅隔开,并注重用餐空间的私密性。主房间的左侧是休闲区,右侧是客厅。客厅是两层设计,这使得接待客人更加豪华。一楼北侧有一间内卫卧室,既安静又舒适,可以作为老年人的房间。
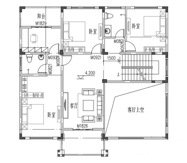
二楼平面图
二楼是主要的居住空间,有三间卧室。值得一提的是,大楼左侧的卧室朝南,有步入式衣帽间、书房和私人浴室,北侧有阳台,从北到南透明,采光极佳,为主人创造了一个极其舒适的生活空间。两个第二卧室的门是公共警卫,非常方便。中间还有一个客厅,供家人聚在一起放松,南面有一个阳台。
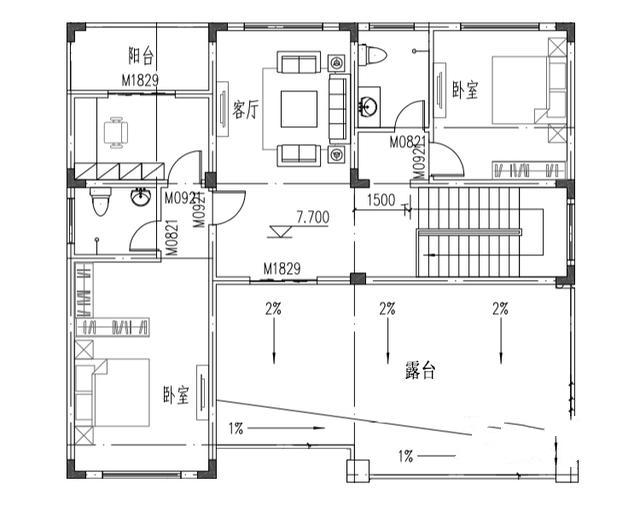
三层计划
左侧还有一个盖卧室,配置与二楼主卧室相同。第二间卧室位于大楼的东北角,中间有一间客厅。在建筑的东南部有一个很大的室外露台,在那里可以种植一些花和绿色植物。这是一个家庭放松和娱乐的好地方。
转载请注明出自轩鼎别墅设计="://lemeizhai.com" target="_self">://www.lemeizhai.com