文明的终极目标是回归自然。这座="://lemeizhai.com" target="_self">简单的三层别墅设计最适合农村生活
对于普通人来说,房子最重要的是它的实用性和合理性。至于外观,没必要太华丽,但简单而美丽。美国著名作家杰西桑皮特曾说过:“文明的终极目标是回归自然。”没错。无论社会发展到什么程度,所有的设计都应该是回归的真实生活。一个好的房子不在于它有多豪华,而在于它的内部结构是否符合主人的生活习惯,空间的流通是否合理方便等等。今天,边肖在农村地区推荐了一个简单的三层小楼,面积只有80平方米,造价20万元。
外观渲染

该农村三层楼小楼宽7.9米,深10.43米,属于小户型,面积只有81.83平方米,总建筑面积只有231.36平方米。地上3层为砖混结构,高度10.3米。
建筑的外观设计简单而干净,整个白色的墙让这座小房子看起来很大气。外墙用文化石和真石漆装饰,复式结构的客厅用落地窗装饰,内外透明,宽敞明亮。虽然外形上没有太多华丽的装饰,但整体上看起来还是很优雅的,这更符合我们当代人的审美。让我们看看它内部公寓的设计。
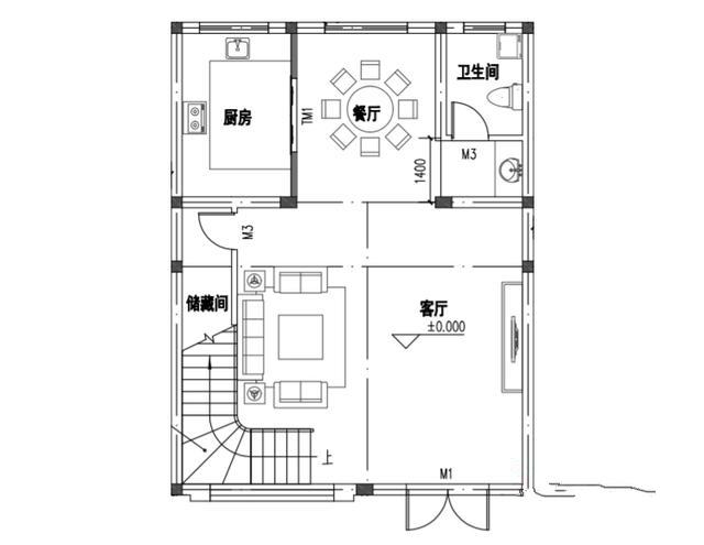
建筑的平面图



进入房间的是一个宽敞的客厅,占据了一楼的大部分空间,是中空的高层设计。接待亲戚朋友很有气氛。虽然公寓很小,但却有豪宅的感觉。在北边,有餐馆和厨房,两者的面积都不小。此外,餐厅的空间与客厅相通,使室内宽敞明亮,弥补了小型公寓的不足。由于建筑面积小,一楼没有卧室,这样可以尽可能扩大功能空间。作为储藏室,通往二楼的楼梯下面的空间非常实用,最大限度地利用了空间。公共卫生警卫位于大楼的东北角,外面有一个水池,使用非常方便。
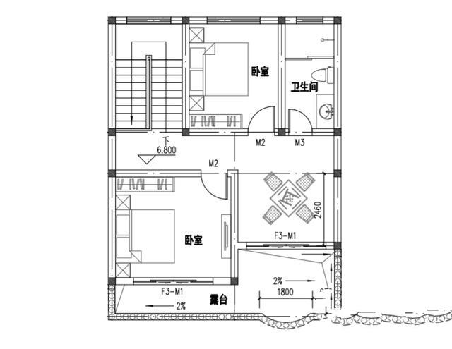
二楼平面图
作为生活空间,二楼有两间卧室,一间在北,一间在南。公共卫生是分开的湿和湿,这是非常接近两个卧室。这种简单的模式也让日常生活更加方便。
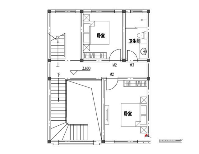
三层平面图
主卧室位于别墅的三楼,朝南,面积很大,可通往露台。在三楼的北面还有一个第二间卧室,公共警卫在第二间卧室旁边。在三楼的东南面,有一个娱乐区,一家人在那里打麻将。举行一次休闲聚会是非常舒服的。娱乐区也可以连接到一个面向南的大露台。露台可作为户外休闲场所,便于晾晒。对于小单位来说,既要满足居住空间,又要享受舒适空间。这个设计做得非常好。
作为一套面积80平方米的小公寓,该图设计非常合理,空间流畅,外观简单美观,总造价约20万元,施工简单。它可以说是农村最简单的三层小楼,它的合理性和实用性是大多数普通农村家庭的正确选择。
转载请注明出自轩鼎别墅设计="://lemeizhai.com" target="_self">://www.lemeizhai.com